Ons kantoor is lid van Baerz & Co Luxury Homes; een internationaal platform dat exclusieve woningmakelaars met elkaar verbindt. Neem contact op met ons secretariaat voor meer informatie over het landelijke aanbod, waarvan u hieronder een selectie kunt bekijken.

Herenhuis for sale in WARMOND

WARMOND Herenweg 73 - 2361 EH The Netherlands


Michiel de Jong RM profile image
Michiel de Jong RM
Real Estate Agent
+31 715161000
info@graalmakelaardij.nl

Graal Makelaardij

Living area
166m2
Plot size
448m2
Bedrooms
5

Description

Charming villa with large garden, mooring and boat

Anyone looking for character, comfort and space in the middle of Warmond will find something special here. This detached villa from 1900 not only offers an impressive amount of living space, but also a unique combination of atmosphere, flexibility and location.

What really sets this house apart:

• Plenty of space: detached, 5 bedrooms, 2 work rooms, three bathrooms, four toilets and large garden
• Flexibility in use: independent annex with its own facilities, ideal for work, au pair or rental
• Privacy and convenience: walled garden, no direct view, two parking spaces on private property
• Central location: in the protected village view of Warmond, with schools, restaurants, shops, nature, beach and water sports around the corner. Bus stop 100 meters away, Leiden Central or Sassenheim station within 5 minutes. Noordwijk beach 15 minutes away. Leiden city center can be reached in 10 minutes by bike. • Character with comfort: original details combined with modern finishing
• Completely renovated in 2017, conversion of annex into residential unit 2023, completely new roof 2024, complete renewal of window frames incl. HR++ glass 2025 and complete exterior painting 2025
• Unique: 'own dam' with passage to the Dorpsstraat
• Extra: possibility to take over boat and mooring

This beautiful villa has recently been almost completely renovated, modernized and insulated, whereby the original atmosphere and appearance from 1900 have been combined with the comfort and finishing of today. The living room, dining room and kitchen form the heart of the house. Here you can have breakfast, cook and dine with a large group and the fireplace is a wonderful place in the winter. The very spacious and fully walled garden offers not only privacy but also extra safety: small children can play here carefree. From spring onwards, the garden doors can be opened, so that the house and garden merge into each other.

In addition, there is access to the attached annex from both the house and the private entrance. The house in combination with the attached annex offer many, but also very diverse possibilities:

• a large (blended) family
• live-in au pair
• guest house
• office or practice at home

The luxury of no less than two parking spaces on private property is something that few homes in the immediate vicinity have. And the possibility of a mooring with a boat makes this house a true place to celebrate life! The current owners rent a mooring 3 minutes away, where their sloop is currently located and both the mooring and the boat can be taken over.
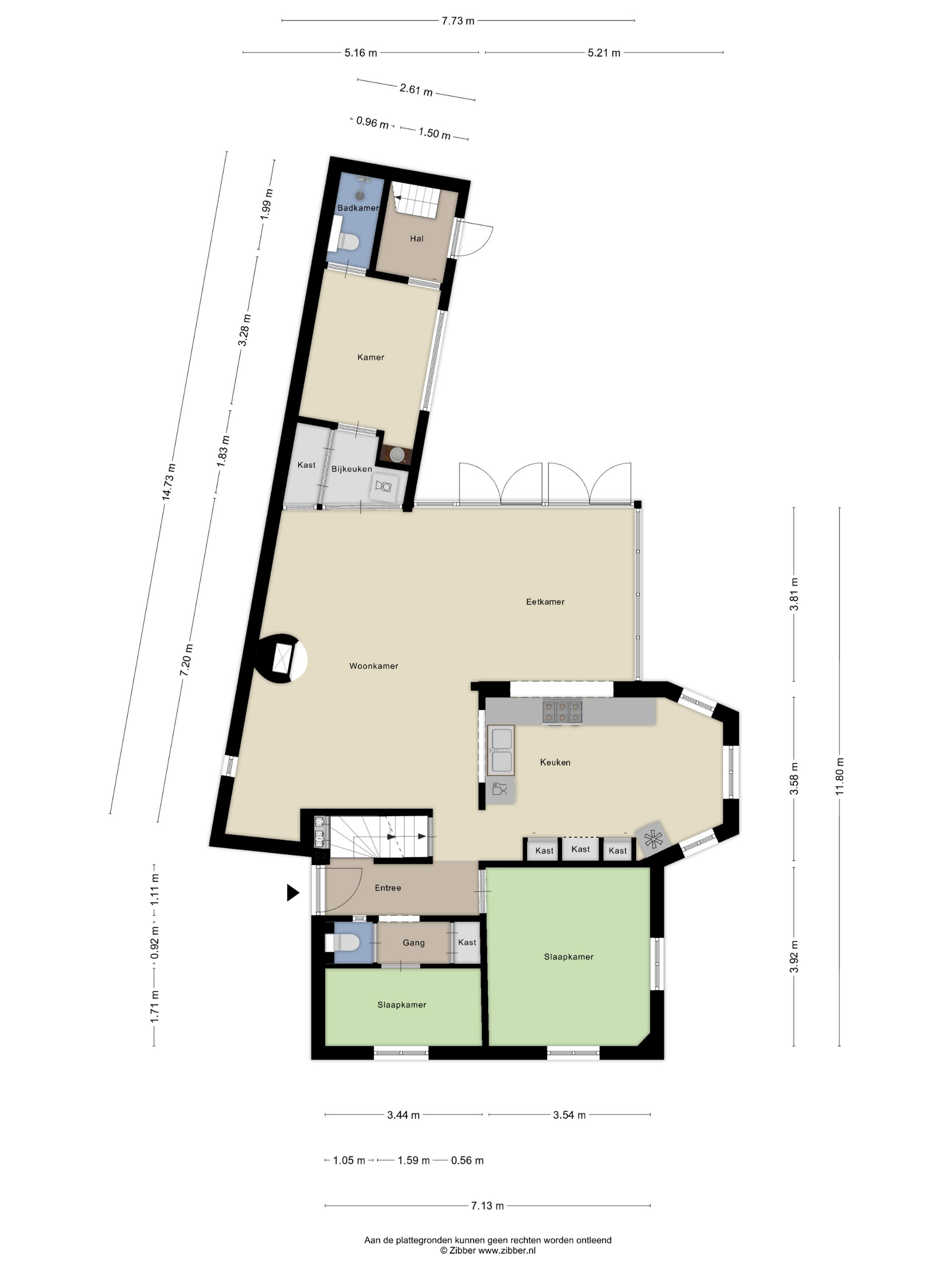
LAYOUT

• House

Ground floor: Entrance with hall, wardrobe and separate toilet. Side room, now used as a bedroom. Front room, now used as a bedroom / guest room. Open living room with central fireplace and adjacent to the garden a dining area for 12 people with patio doors to the garden. Semi-open kitchen with breakfast corner. Passage from the living room to the annex.

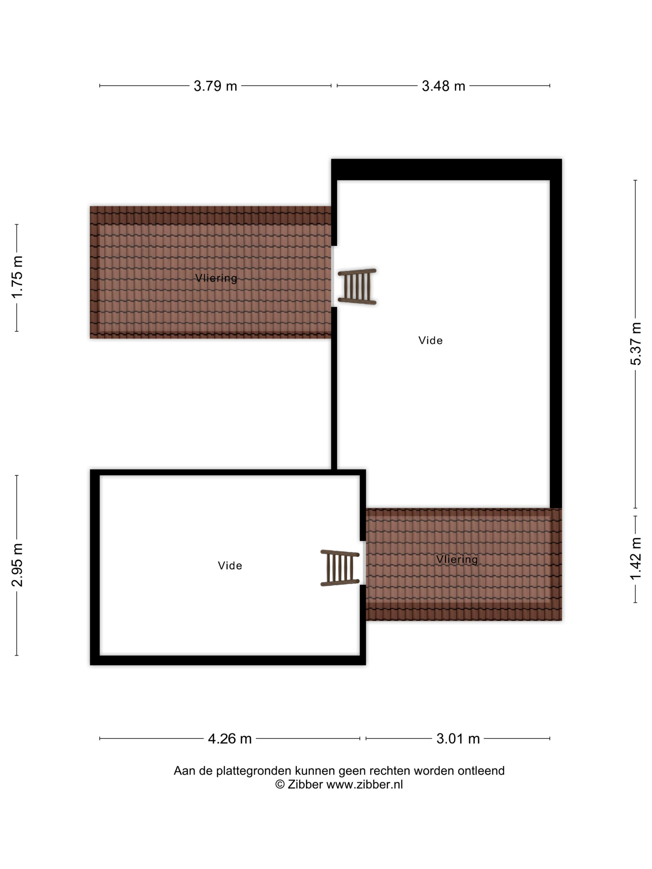
1st floor: Landing with access to the bedrooms and bathrooms. Master bedroom with sleeping loft and ensuite bathroom with shower, bath and toilet. Two children's bedrooms with a shared bathroom with shower and toilet.

Basement: Spacious storage cellar

• Annex
Ground floor: Private entrance from the garden with hall and stairs to the 1st floor. Living room, currently used as a home office, with bathroom with shower and toilet and laundry and cupboard space in the interior to the house.

1st floor: Sleeping loft with built-in cupboards

• Garden
Very spacious, walled garden with lots of privacy and a back entrance with parking space. A second parking space is located next to the front door.

State of the house: completely renovated in 2017 - roof insulated and roof tiles replaced in 2024 - window frames replaced and fitted with HR++ glass in 2024 - exterior painting carried out in 2025.

Features

Transfer of ownership
price
€ 1.245.000 k.k.
Status
onder bod
Acceptance
in overleg
Construction
Kind of house
Herenhuis
Building type
vrijstaande woning
Construction period
1900
Energy rating
B
Roof type
samengesteld dak
Bedrooms
5
Bathrooms
3
Surface Areas And Volume
Living area
166 m2
Other indoor space
4 m2
Volume in cubic meters
602 m3
Plot size
448 m2
facilities
Mechanische ventilatie
Tv kabel
Rookkanaal
In centrum
In woonwijk
Beschutte ligging
Baerz & Co Property Brochure

Brochure

Information / Viewing request

Videos

Photos

Floor Plans