Ons kantoor is lid van Baerz & Co Luxury Homes; een internationaal platform dat exclusieve woningmakelaars met elkaar verbindt. Neem contact op met ons secretariaat voor meer informatie over het landelijke aanbod, waarvan u hieronder een selectie kunt bekijken.

VENLO
Negen-novemberweg 27 - 5916 LD
Netherlands

Don Willems profile image
Don Willems
Makelaar
€839,000 k.k.
Living Area
227m2
Plot Size
754m2
Bedrooms
6

Description

This country house Venlo redefines sustainable living, blending forward-thinking design with tranquility. Entering the 227 m² interior, the focus keyword, country house Venlo, is realized in understated, future-proof comfort. The home holds an A++ energy label, supported by 16 solar panels, a hybrid heat pump, and comprehensive insulation, delivering efficiency and ease with energy costs of just €160 per month.

The main living space, measuring 62 m², is illuminated by a bay window and features a fireplace, roof window, and sliding doors that open directly to a landscaped, private garden on a plot of 754 m². The adjoining kitchen and utility room provide practical luxury, while automatic sunshades soften the mood. Nearly the entire ground floor benefits from underfloor heating and cooling. The master suite on this level, measuring 16 m², is complemented by an en-suite bathroom, ensuring privacy and accessibility.

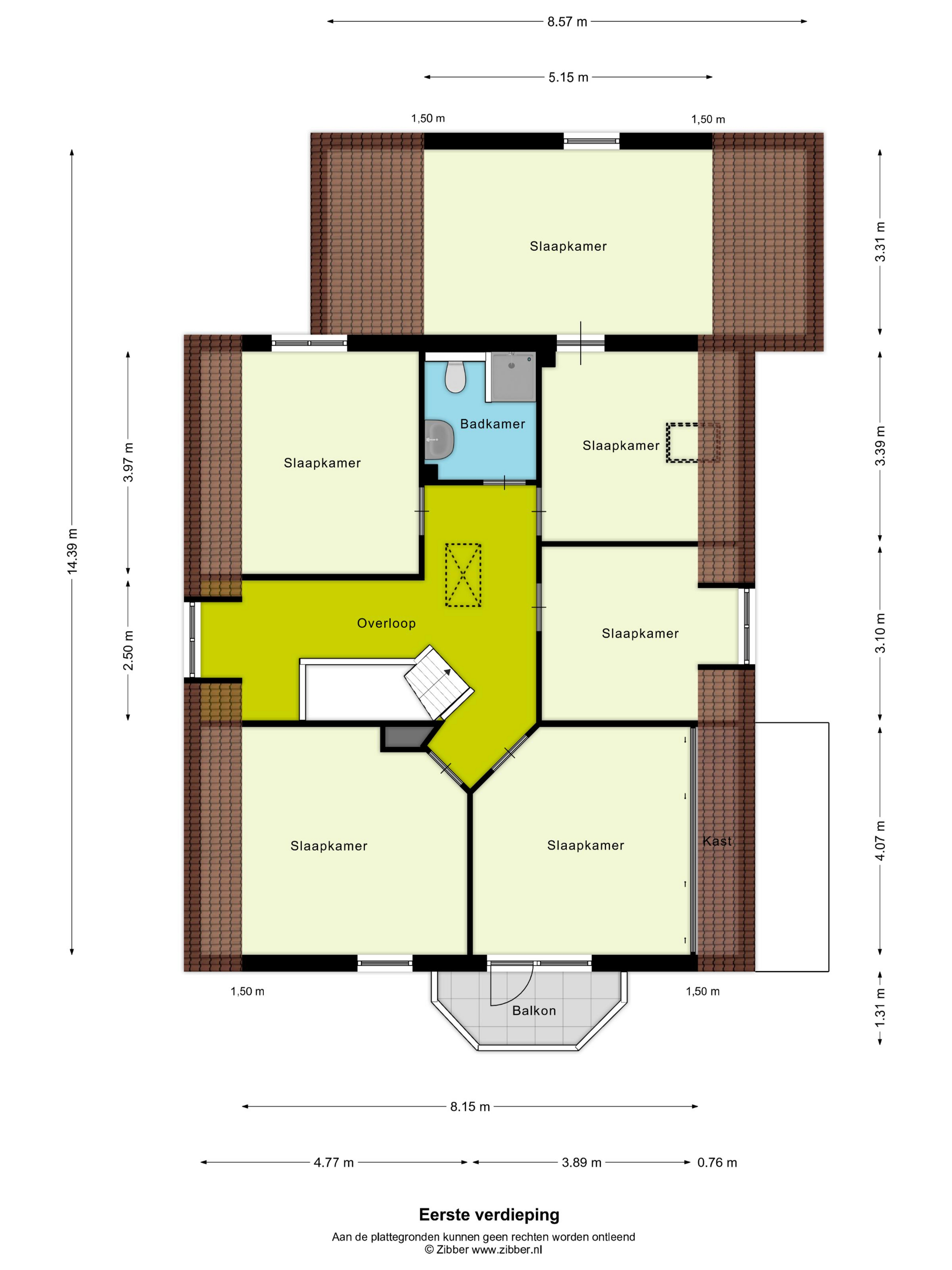
Five further bedrooms and a second bathroom occupy the first floor, with one bedroom accessing a potential wellness area and another opening to a balcony. A cellar, attic, and a 21 m² heated garage with sectional door and garden access offer flexible storage and functionality. Outside, multiple seating areas amid mature trees and borders create an enclave of green calm, ideal for quiet family life or outdoor gathering.

Located in a peaceful Dutch-German border area near the Groote Heide nature reserve and within walking distance of sports facilities, this property merges connectedness with escape. Just ten minutes from Venlo’s center and major routes to Eindhoven and Germany, the residence situates itself for those who value peace paired with access. This is a rare opportunity for those seeking a sustainable, comfortable, and spatially generous country house for sale in Venlo.

Explore Venlo with Baerz, Your Trusted Personal Property Finder & Advisor

Premium real estate transactions in Venlo demand a nuanced understanding of local inventory, zoning, and future developments. Experienced advisors offer privileged access to off-market listings and excel at discreet negotiations, positioning clients ahead of evolving market trends. Guidance is crucial for securing the most architecturally significant homes or negotiating favourable investment terms.

Special Features

Solar panels
Alarm system

Features

Transfer of ownership
Asking Price
€ 839.000 k.k.
Status
onder bod
Acceptance
in overleg
Construction
Kind of house
Landhuis
Building type
vrijstaande woning
Construction period
1989
Energy rating
A++
Roof type
zadeldak
Bedrooms
6
Bathrooms
2
Surface Areas And Volume
Living Area
227 m2
Other indoor space
70 m2
Exterior space attached to the buildinge
8 m2
Volume in cubic meters
1100 m3
Plot Size
754 m2
Facilities
Mechanische ventilatie
Alarminstallatie
Tv kabel
Buitenzonwering
Schuifpui
Dakraam
Zonnepanelen
Aan bosrand
In woonwijk
Baerz & Co Property Brochure

Brochure

Videos

Floor Plans

VeTeBe

Grotestraat 84a
5931 CX Tegelen

info@vetebe.nl
+31 77 3262600

www.vetebe.nl

Information / Viewing request

Don Willems profile image
Don Willems
Makelaar