Baerz & Co is een landelijk samenwerkingsverband van zorgvuldig geselecteerde boutique luxury makelaars. Samen vormen wij één netwerk, met één gedeeld aanbod. De woningen die u op onze website ziet, zijn afkomstig van alle aangesloten kantoren binnen Baerz & Co. Daardoor is niet ieder object rechtstreeks door ons kantoor in verkoop, maar door een gespecialiseerde collega binnen ons netwerk. Heeft u een woning gevonden die u aanspreekt en wilt u meer informatie? Dan brengen wij u graag persoonlijk in contact met de betreffende verkoopmakelaar, zodat u direct en zorgvuldig wordt begeleid.

TZUMMARUM
Sedyk 5 - 8851 RM
Netherlands

Bie Kin profile image
Bie Kin
Real Estate Agent
€1,200,000 k.k.
Living Area
295m2
Plot Size
4468m2
Bedrooms
6

Description

Wadden Sea Hide-away: Stylish Dike House | Guesthouse | Wellness & Panorama

A truly unique location! Tucked away among trees, on a historic stretch of the Wadden Sea with a pond and surrounding farmland, this exceptional estate awaits. The fully modernized dike house features wellness facilities, horse stables, and a recently designed architect-built detached guesthouse. Fully insulated, with an A+ energy label, this home offers the very best in comfort. Here, life moves in harmony with the seasons, the atmosphere and salty sea breeze reminiscent of Terschelling. Enjoy panoramic views over the Wadden Sea and pond, a private woodland garden, and the expansive Frisian skies—sometimes even illuminated by the Northern Lights. A place where peace, freedom, and privacy come naturally.

The 4,468 m² plot has full residential zoning, including the option for a home-based profession. Professionally renovated in 2011, the dike house retains its character while offering modern comforts: A+ energy label, 24-420 WP solar panels, HR++ glazing, and a ground-floor layout with bedrooms and bathrooms. Upstairs, two charming bedrooms and a loft-style third room provide additional space. The spacious kitchen and living areas offer panoramic views over the Wadden dike, farmland, and garden.

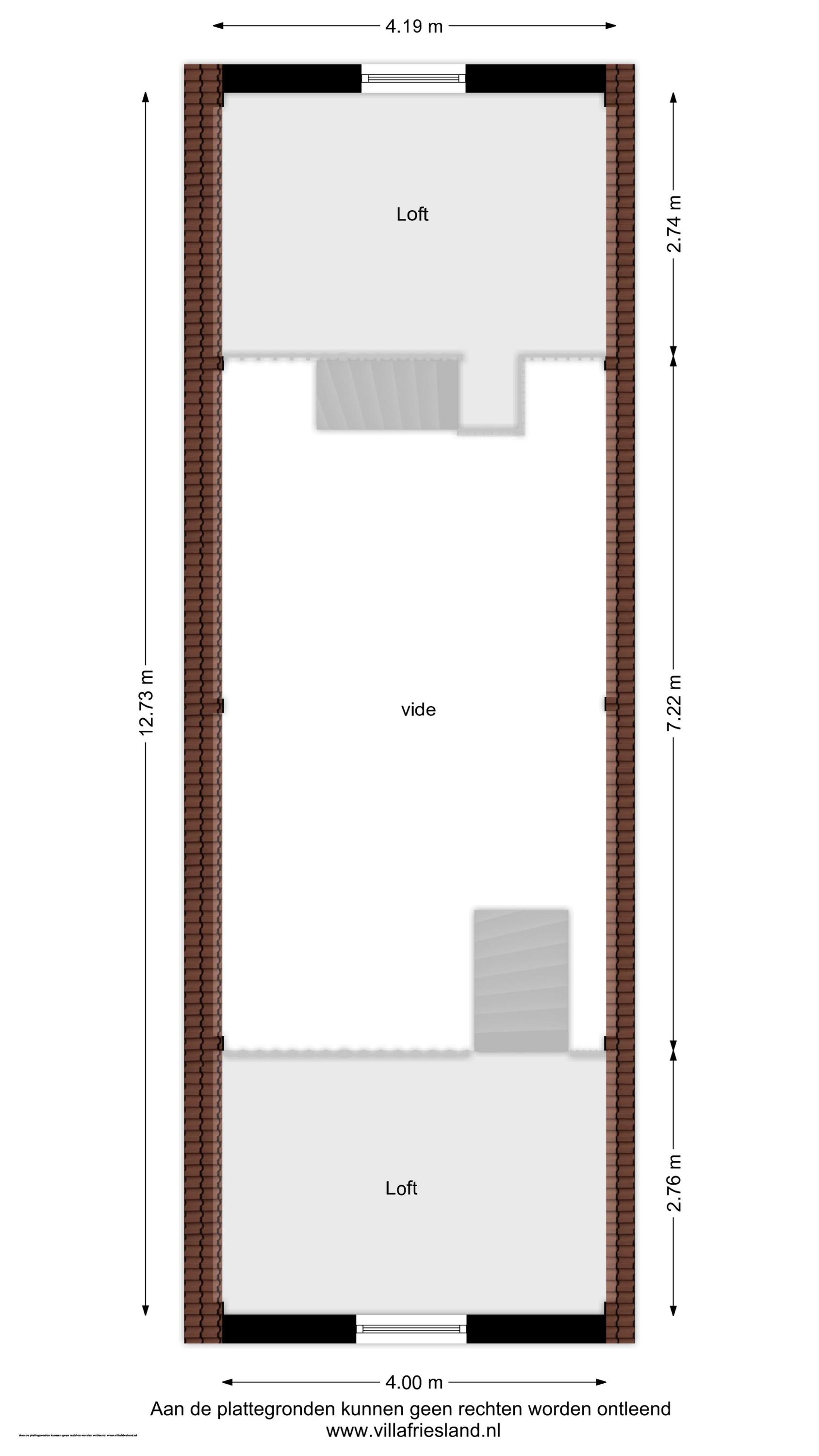
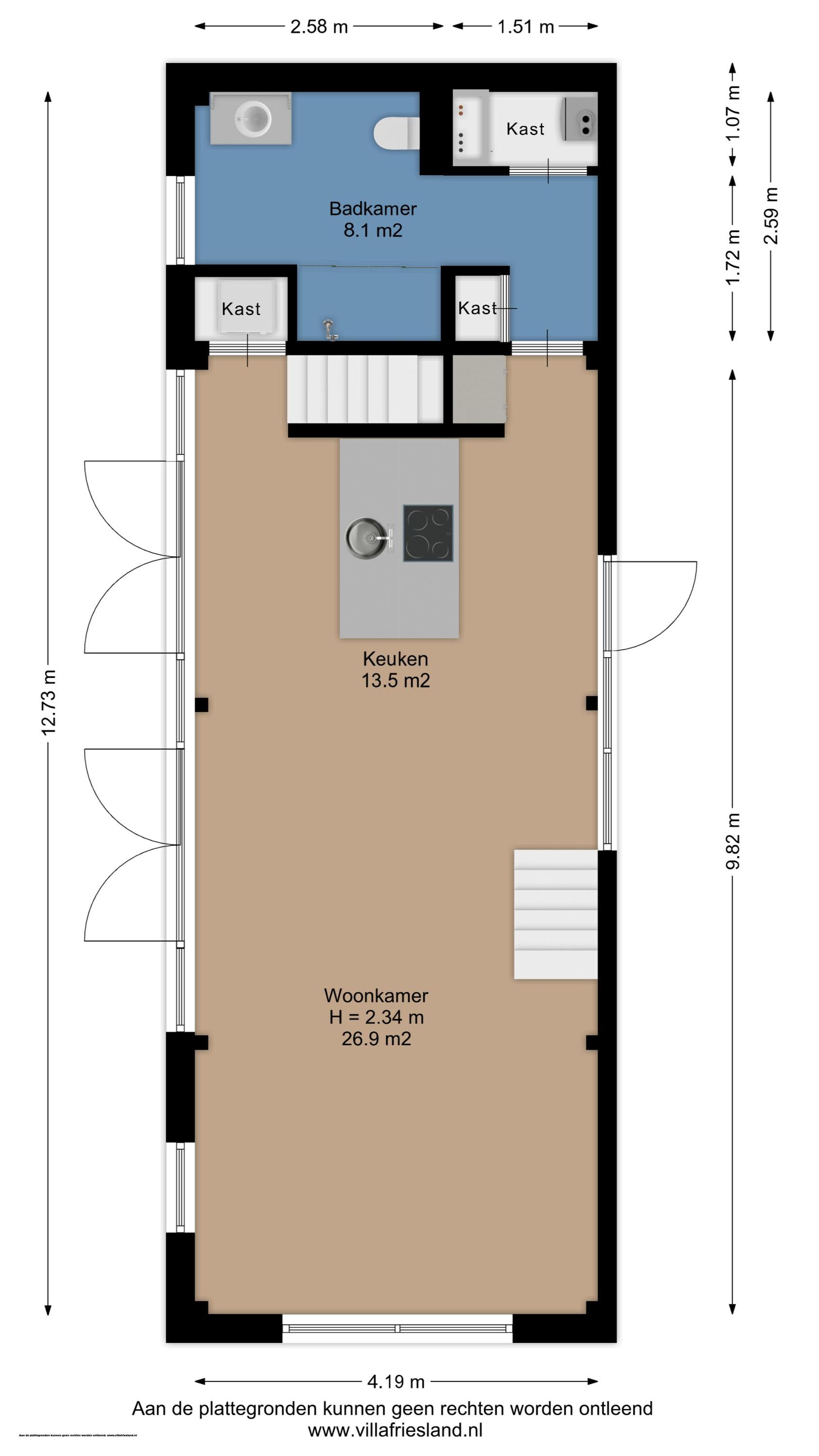
At the rear of the garden, adjoining the pond and with potential for a private driveway, a modern detached guesthouse has been built, offering total privacy from the main house. This self-contained, hotel-chic residence features an open kitchen, living area, bathroom, and a loft with bedroom and studio/workspace. Ideal for dual living, working from home, or care for family.

The garden is elegantly landscaped with a wellness corner, walking paths, orchard, terraces, and multiple seating areas. The woodland garden includes a paddock and two horse stables with storage and canopy. Here, you live in freedom, amidst nature and tranquility, with the Wadden Sea and its wildlife as your backyard.

Main House Layout

Ground Floor
Upon entering, the style immediately impresses: the front door with decorative wrought-iron grille, a wall of antique Frisian tiles, and a hardstone floor set the tone for this meticulously renovated dike house. The hallway leads to a spacious bathroom with double sink, bathtub, walk-in shower, and toilet.

The bright kitchen on the left wing offers panoramic views of the Wadden dike and farmland. A central space for cooking and dining, fitted with premium appliances including an induction hob. Behind the kitchen, a hallway with beautiful Frisian tile wall leads to the current study, with doors to the garden and bathroom/toilet. Above the study is a light-filled loft, ideal as a guest room or studio.

The living room in the right wing reveals the original beam ceiling. The L-shaped living area comprises a music room with staircase to the upper floor, stained-glass sliding doors to a study, and a spacious, light-filled garden room with French doors overlooking the garden, stables, and orchard. Stained-glass doors connect the garden room to the master bedroom, which has separate access to the wellness area with jacuzzi, sauna, sun terrace, and outdoor shower. The master suite also connects to a study/walk-in closet.

First Floor
The character of the original dike house is still palpable. Two cozy, stylish bedrooms, a landing with generous built-in wardrobes beneath the pitched roof, exposed beams, and visible rafters. Both bedrooms feature their own sink units.

Guesthouse Layout

The architect-designed, fully insulated luxury outbuilding (aprox 13x4.5m) features tall windows all around (HR++), providing panoramic views. The house can be accessed via French doors on both the front and rear sides, each opening onto terraces with handmade pavers. The light, high-ceilinged interior with exposed Douglas beams emphasizes living with nature. Thanks to its location in a dark-sky area, the starry sky is brilliantly visible, and the Northern Lights occasionally appear. Flocks of water and meadow birds often pass overhead.

The luxurious ceramic-tiled floor features underfloor heating, and lighting is controlled via smart home systems. The heart of the home is the open-plan kitchen beneath the mezzanine, with granite-topped cooking and prep island, integrated induction hob, extractor, and dishwasher. The bathroom and laundry room are private spaces beneath the right loft. The bathroom is equipped with ceramic tiles, a spacious walk-in shower with smoked glass, stylish vanity, toilet, and designer towel radiator.

The living area sits under the left loft, while two separate multifunctional loft spaces, each with its own staircase, can be used as bedrooms, studios, or workspaces. The guesthouse is clad in Douglas siding, zinc gutters, and features 24-420 WP solar panels. A private driveway is possible, subject to municipal approval.

Plot & Outbuildings

The extensive plot is elegantly landscaped with a wellness corner, walking paths, orchard, terraces, and multiple seating areas. The woodland garden includes a paddock and horse stables with storage and canopy. The front garden is lush with garage including charging station/workshop, wood storage, and canopy. From both houses, the Wadden dike is just steps away, offering the magic of this UNESCO World Heritage Site.

A Remarkable Piece of History

This home on the Sedyk is rooted in Friesland’s rich dike history. The current house was built around 1924 after the previous building, which included a café, was removed for dike reinforcement. The nearby hamlet of Koehool, with its “Waadfisker” memorial, is a notable Wadden Sea location where fishermen and dike workers made their living. Here, you feel the open mudflats, expansive skies, and cultural heritage of the Frisian coast. Living on the Sedyk means enjoying peace, space, and breathtaking views, becoming part of a unique historical landscape.

Features

* New A+ energy label
* Fully insulated, 24-240 WP solar panels
* Generous 4,468 m² plot with garden, woodland, orchard, walking paths
* Full residential zoning, possibility for home-based profession
* Original house fully modernized and extended in 2011
* Architect-designed detached guesthouse (2021)
* Panoramic views over dike, Wadden Sea, pond, and farmland
* Wellness with sauna, toilet, sun terrace, jacuzzi, and outdoor shower
* Two wood-burning stoves
* Barn, garage/workshop with canopy and wood storage
* Horse stables with paddock
* Easy access to Randstad via Afsluitdijk in 1h15

Location – Tzummarum

Just 15 minutes from Franeker and Harlingen, Tzummarum offers tranquility, space, and nature. Facilities include a primary school, general practitioner, sports clubs, bakery, recreation park, and hospitality venues. Connections to Franeker, Harlingen, Heerenveen, and Leeuwarden are good; Amsterdam reachable via Afsluitdijk in 1h15, Groningen in 1 hour.

This is a place for those seeking a unique lifestyle: freedom, nature, and serenity, with the Wadden Sea literally in your front and backyard.

DISCLAIMER
The information provided has been carefully compiled from various sources. While we strive for accuracy, we cannot guarantee that all details are complete or correct, and no rights can be derived from this information (including any attachments or brochures). The information is offered entirely as a guideline and does not constitute a binding offer. For properties older than 25 years, the purchase agreement will include an age and asbestos clause.

Features

Solar panels
Transfer of ownership
Asking Price
€ 1.200.000 k.k.
Status
beschikbaar
Acceptance
in overleg
Construction
Kind of house
Woonboerderij
Building type
vrijstaande woning
Construction period
1924
Energy rating
A+
Roof type
zadeldak
Bedrooms
6
Bathrooms
3
Surface Areas And Volume
Living Area
295 m2
Other indoor space
0 m2
External storage space
37 m2
Volume in cubic meters
1179 m3
Plot Size
4468 m2
Facilities
Jacuzzi
Rookkanaal
Dakraam
Sauna
Domotica
Zonnepanelen
Natuurlijke ventilatie
Aan water
Aan rustige weg
Vrij uitzicht
Beschutte ligging
Buiten bebouwde kom
Landelijk gelegen
Zeezicht
Baerz & Co Property Brochure

Brochure

Videos

Van Baarle Makelaardij

Hoogbraak 1
5111 CS Baarle-Nassau

bie@vanbaarlemakelaardij.com
+31 013762 02 02

www.vanbaarlemakelaardij.com

Information / Viewing request

Bie Kin profile image
Bie Kin
Real Estate Agent

Buying a Luxury Property in Tzummarum

Tzummarum stands out for its legacy homes, inclusive community, and exceptional access to Friesland’s natural and cultural assets. Residents benefit from a tailored lifestyle and expert services that attract a discerning international audience.