Ons kantoor is lid van Baerz & Co Luxury Homes; een internationaal platform dat exclusieve woningmakelaars met elkaar verbindt. Neem contact op met ons secretariaat voor meer informatie over het landelijke aanbod, waarvan u hieronder een selectie kunt bekijken.

Herenhuis for sale in ROTTERDAM

ROTTERDAM Jan van Ghestellaan 42 - 3054 CJ The Netherlands


Joris van Oosten profile image
Joris van Oosten
Real Estate Agent
+31 6 42 19 84 37
info@vanoostenmakelaardij.nl

J.J. Van Oosten Makelaardij BV
Straatweg 225
3054 AG Rotterdam
NETHERLANDS
+31 10 422 11 00
www.vanoostenmakelaardij.nl
info@vanoostenmakelaardij.nl

Living area
257m2
Plot size
536m2
Bedrooms
5

Description

Sometimes, as a real estate agent, you enter a house and you fall in love immediately...

And that is the case with this truly sublime corner townhouse. Superlatives are not enough to describe this fantastic house with an unprecedentedly large backyard for this neighborhood. This house has everything you could wish for in terms of modern comfort and nature. Both house and garden have been thought out down to the last detail and everything is just right. The kitchen/diner at garden level is the connecting link between the living floor and the basement. From the kitchen/diner, patio doors give access to the beautiful backyard, which has been designed and created with respect for nature, with 3 terraces, built-in trampoline, swing and a lot of privacy due to the planting.

The beautiful spacious kitchen/diner with high ceiling and the nature and child-friendly backyard may be the real eye-catchers, but the house has many more strong plus points and unique selling points. For example, the combination of the preserved authentic details and the applied modern comfort is particularly attractive and atmospheric. The basement with a TV room/chill room/playroom is ideal for families. On the 2 sleeping floors there are 3 spacious bedrooms, 2 with a balcony, 1 with a stylish en suite walk-in closet and 1 with an en suite bathroom. If desired, 2 extra bedrooms can be created on the top floor relatively easily.

The house, which was built in 1926, has a particularly charming and characteristic architectural style and has no less than 536m² of private land and is located in a quiet and green one-way street. At the front there is space to park 2 cars on private property and the possibility to install a charging point. The house was completely renovated in 2014, including the piled extension at the rear (realization of a kitchen/diner) and at the side, where the utility room and storage room are now located. The kitchen/diner and utility room have underfloor heating. The entire house has sound insulation on the terraced side. The side extension has its own entrance, ideal for daily use (shortcut for groceries to the kitchen, coming home after sports or walking the dog).

The shops of the Bergse Dorpsstraat are within walking distance, as well as various public transport, the Schiebroeksepark and Bergse Bos and the recreational areas around the Rotte. Play park Plaswijckpark, Natural pool Het Zwarte Plasje, marinas, various sports clubs such as tennis park Plaswijck '62, hockey club Rotterdam and football and cricket club VOC are within easy reach. Furthermore, many excellent schools and daycare centres can be reached on foot or within a few minutes by bike and/or car. The A12, A13, A16 and A20 highways are easily accessible.

Layout:
Ground floor: Entrance, light and spacious hall with extra spacious toilet with washbasin, 2 staircase cupboards for coats and shoes, beautiful wide and light living room with an oak parquet floor, the high-efficiency wood-burning fireplace that radiates a wonderful, comfortable warmth. The kitchen-diner is situated in the attractive extension at the rear. This extension has been executed to perfection, so that it feels as if it has always been like this. The gas-fired fireplace at the head of the dining table is the mood maker for many cozy dinners and drinks at home. From the kitchen-diner there is access to the basement with laundry room and to the utility room that is situated in the side extension. At the front is the storage function/shed with access to the street, ideal for putting a nice (cargo) bike or scooter inside and at the rear the utility room function with high storage cupboards, a washbasin unit, which is handy for sports shoes, coats or if you have pets. The utility room also has a door to the back garden, so you can easily go to the back garden with a green bin, for example. In addition, the back garden has a back entrance at the rear, connecting to the back path.

Basement: Height approx. 210 cm under the beams (between the beams it is even higher) and daylight from 2 sides (direct and indirect) and spacious crawl space for storage. This floor is extremely suitable for realizing dreams such as a home cinema/chill room/fitness room/playroom/home office and is already furnished with a lockable TV/chill room, home office, separate laundry room and storage space. The spacious view through to the kitchen, where the windows can be opened, is a brilliant idea to maintain contact between the rooms, but also to be able to close them off.

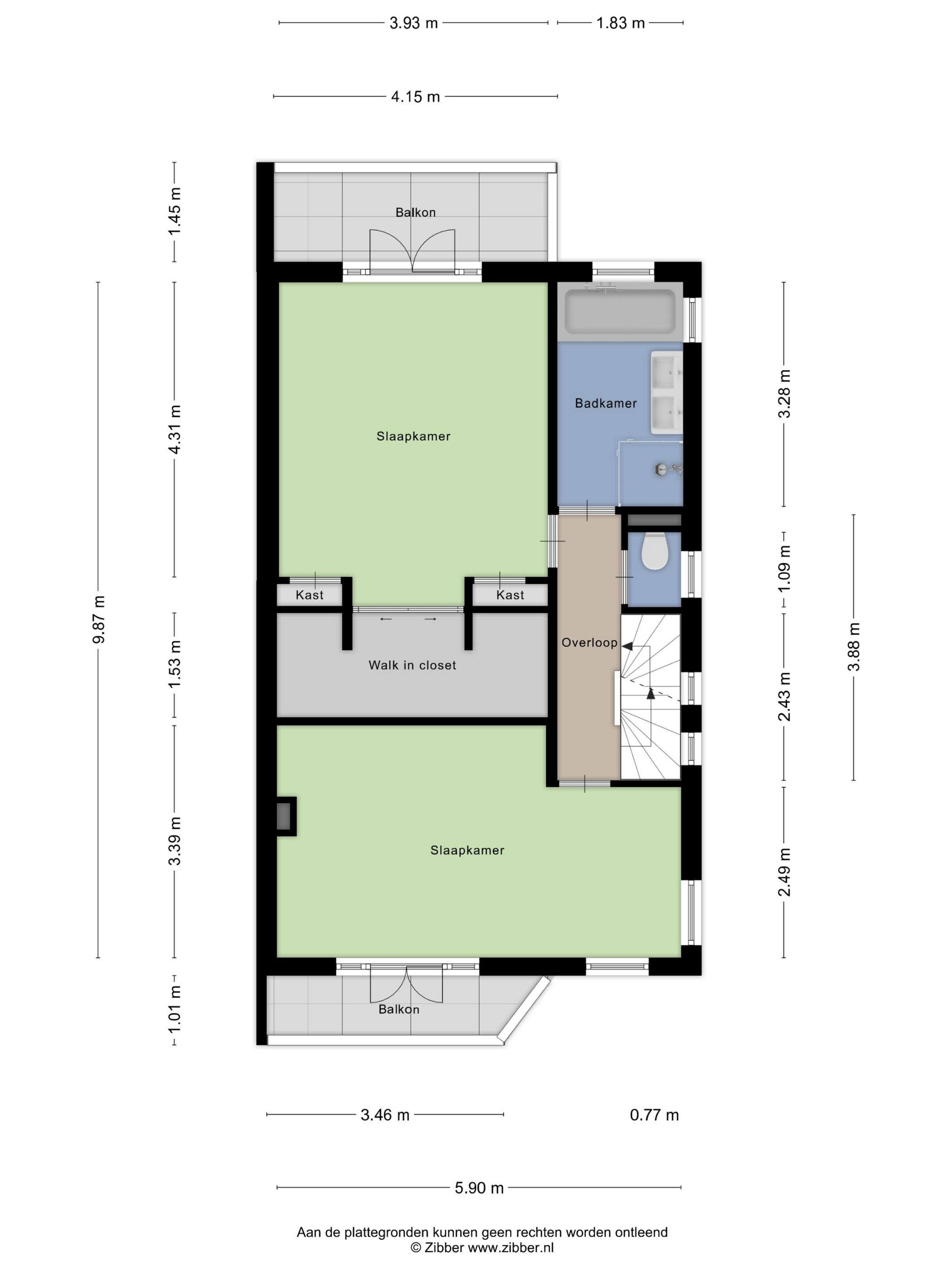
First floor: From the ground floor, the staircase to the first floor has beautiful authentic stained glass windows that are placed in double glazing and provide a pleasant and warm light in the stairwell. The entire floor has a beautiful oak floor. Once upstairs, there is the landing with toilet, the bright bathroom at the rear with walk-in shower, bath, double sink, towel radiator and electric underfloor heating. The master bedroom is light and quiet and has an en suite walk-in closet that can be closed off with original sliding doors, there are also patio doors to the spacious balcony across the entire width of the building. From this bedroom and the balcony the view of the beautiful backyard is breathtakingly beautiful. At the front is the 2nd spacious bedroom (formerly 2 bedrooms), currently used as a study with a super charming balcony and a view of the beautiful crown of the magnolia. Staircase to the 2nd floor also equipped with original stained glass windows in double glazing.

Second floor: This floor also has the beautiful oak floor, light and spacious landing with storage cupboard, enormous bedroom (which can be divided into 2-3 rooms relatively easily) with en suite (second) bathroom equipped with Velux skylight with mosquito net and blinds, shower, toilet, sink and towel radiator. This fantastic room has a spectacular height up to the ridge and a vide accessible by fixed staircase. There are examples of similar houses in the street where an additional floor has been created at the vide level and in that space 1-2 extra rooms have been created.

Back garden: Approx. 23 meters deep by over 17 meters wide from halfway the depth and approx. 8.5 meters wide at the front part. The garden has a drip system, has been created with much love and respect for nature, offers a lot of privacy due to the planting, faces northeast, and because of the depth and size there is a spot in the sun to be found all day long, on one of the three lovely terraces. So you have a spot in the sun or shade at any time of the day. The garden has a wooden garden house with a canopy and there is a gate to the back path.

Details;
- year of construction 1926
- located on 536 m² of private land
- usable living area approx. 257 m² (according to BBMI / NEN 2580)
- usable area other indoor space approx. 1.5 m² (according to BBMI / NEN 2580)
- usable area building-related outdoor space approx. 11 m² (according to BBMI / NEN 2580)
- usable area external storage space approx. 5.5 m² (according to BBMI / NEN 2580)
- fully equipped with wooden frames with double glazing
- heating and hot water by means of a central heating combi boiler from 2014
- energy label C
- sun blinds (awnings) front facade and side facade
- roof tiles have been renewed with the entire 4-under-1-roof in 2024

Delivery in consultation.

For additional information about this house, you can visit the house's own website (address + house number).

J.J. van Oosten Makelaardij is the seller's NVM broker. We advise you to engage your own NVM broker to represent your interests when purchasing this property.

No rights can be derived from this offer text.

The usable surface area of ??the house has been measured in accordance with the industry-wide measurement instruction (BBMI). The BBMI is based on the NEN2580. The BBMI is intended to apply a more uniform method of measuring to provide an indication of the usable surface area. The measurement instruction does not completely exclude differences in measurement results, for example due to differences in interpretation, rounding or limitations in carrying out the measurement.

Features

Transfer of ownership
price
€ 1.695.000 k.k.
Status
beschikbaar
Acceptance
in overleg
Construction
Kind of house
Herenhuis
Building type
hoekwoning
Construction period
1926
Energy rating
C
Roof type
samengesteld dak
Bedrooms
5
Bathrooms
2
Surface Areas And Volume
Living area
257 m2
Other indoor space
2 m2
Exterior space attached to the building
11 m2
External storage space
6 m2
Volume in cubic meters
916 m3
Plot size
536 m2
facilities
Mechanische ventilatie
Alarminstallatie
Tv kabel
Buitenzonwering
Rookkanaal
Aan rustige weg
In woonwijk
In bosrijke omgeving
Baerz & Co Property Brochure

Brochure

Information / Viewing request

Videos

Photos

Floor Plans