Ons kantoor is lid van Baerz & Co Luxury Homes; een internationaal platform dat exclusieve woningmakelaars met elkaar verbindt. Neem contact op met ons secretariaat voor meer informatie over het landelijke aanbod, waarvan u hieronder een selectie kunt bekijken.

NUENEN
Hoevensestraat 10 - 5674 XK
Netherlands

Anne-Marie van Santvoort profile image
Anne-Marie van Santvoort
Real Estate Agent
€1,550,000 k.k.
Living Area
275m2
Plot Size
7540m2
Bedrooms
6

Description

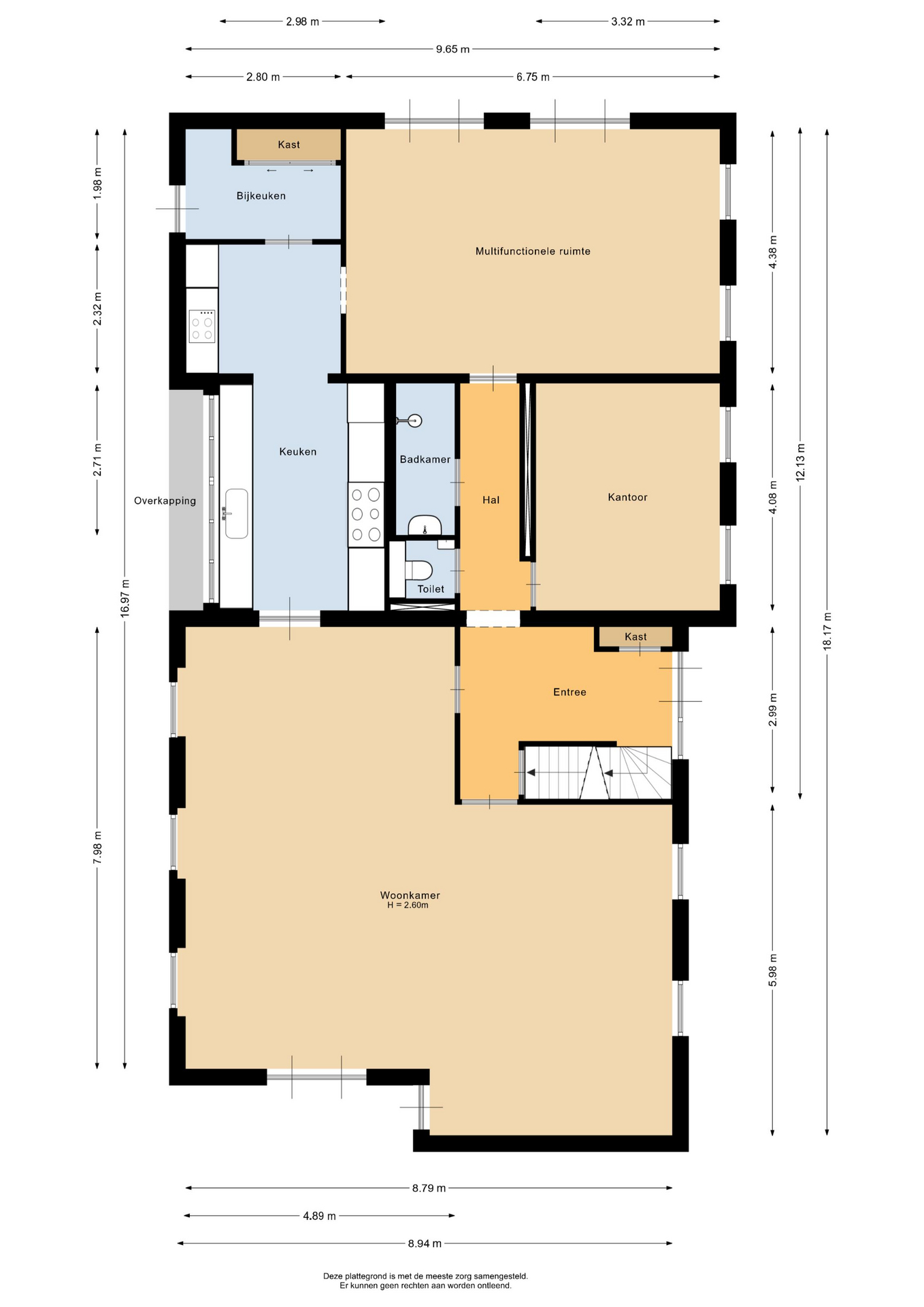
Farmhouse Nuenen stands as a testament to timeless design where historic charm and contemporary living converge on a generous 7,540 m² countryside plot. This farmhouse, originally built in 1945 and carefully renovated and extended in 2017, balances heritage details and modern amenities for a rare residential experience. Light-filled living unfolds across 275 m², with six bedrooms, three bathrooms and flexible spaces offering both privacy and connection. Underfoot, wood-look tiled flooring with underfloor heating creates a sense of comfort, complemented by sleek stucco finishes and classic ceiling mouldings.

The ground floor flows from a monumental entrance to expansive living and kitchen areas, blending seamless ergonomics with thoughtful craftsmanship, including a Boretti stove, high-gloss cabinetry, and integrated appliances. French doors invite the outdoors in, opening to terraces and a park-like garden, where mature plantings, meadows and stables for four horses animate the landscape. Every room receives abundant natural light through large windows and skylights, with the principal suite enjoying a generous view over woodland gardens and direct access to a modern en-suite. Practical touches include a deep cellar, utility rooms, and laundry, complemented by advanced insulation and high-performance glass for year-round comfort.

Three bathrooms reflect restrained elegance with quality fittings, tiled finishes and underfloor heating. Beyond the home, the grounds offer refined possibilities for equestrian pursuits or quiet contemplation, secured by an electric gate with video intercom. Beauty and privacy are balanced with convenience, with the amenities and village life of Nuenen easily within reach. This luxury farmhouse for sale in Nuenen is both a sanctuary in nature and a statement of enduring design.

Explore Nuenen with Baerz, Your Trusted Personal Property Finder & Advisor

The nuances of Nuenen’s high-value market call for expert insight and a discreet approach. Personal advisors offer tailored access to exclusive listings, often before they reach public channels. Their knowledge streamlines complex negotiations, from identifying renovation opportunities to connecting with trusted surveyors and legal professionals. With experience across heritage and contemporary segments, these advisors ensure confidentiality and precision at every stage, enhancing both acquisition and investment outcomes.

Features

Transfer of ownership
Asking Price
€ 1.550.000 k.k.
Status
beschikbaar
Acceptance
in overleg
Construction
Kind of house
Woonboerderij
Building type
vrijstaande woning
Construction period
1945
Energy rating
C
Roof type
zadeldak
Bedrooms
6
Bathrooms
3
Surface Areas And Volume
Living Area
275 m2
Other indoor space
7 m2
Exterior space attached to the buildinge
2 m2
External storage space
129 m2
Volume in cubic meters
992 m3
Plot Size
7540 m2
Facilities
Mechanische ventilatie
Glasvezel kabel
Natuurlijke ventilatie
Baerz & Co Property Brochure

Brochure

Videos

Van Santvoort Makelaars

Torenallee 65
5617 BB Eindhoven

anne-marie@vansantvoort.nl
+31 40 269 25 30

www.vansantvoort.nl

Information / Viewing request

Anne-Marie van Santvoort profile image
Anne-Marie van Santvoort
Real Estate Agent