Baerz & Co is een landelijk samenwerkingsverband van zorgvuldig geselecteerde boutique luxury makelaars. Samen vormen wij één netwerk, met één gedeeld aanbod. De woningen die u op onze website ziet, zijn afkomstig van alle aangesloten kantoren binnen Baerz & Co. Daardoor is niet ieder object rechtstreeks door ons kantoor in verkoop, maar door een gespecialiseerde collega binnen ons netwerk. Heeft u een woning gevonden die u aanspreekt en wilt u meer informatie? Dan brengen wij u graag persoonlijk in contact met de betreffende verkoopmakelaar, zodat u direct en zorgvuldig wordt begeleid.

LEIDEN
Rapenburg 45 - 2311 GG
Netherlands

€2,750,000
Living Area
345m2
Plot Size
218m2
Bedrooms
6

Description

Unique, fully renovated monumental canal house in an absolute prime location, with a
sunny and completely secluded city garden

As early as the 17th and 18th centuries, Rapenburg was praised as one of the most beautiful and
distinctive canals in the Netherlands. To this day, this majestic
canal, with its monumental buildings, stately facades, and characteristic bridges, is considered
the crown jewel of Leiden.

The history of this building goes back even further: the foundation of the vaulted cellar dates
back to the 15th century. The plots Rapenburg 41–45 are located on the site of the
former Hieronymus Monastery, giving this property an exceptional historical
layering.

Rapenburg 45 is an exceptional 17th-century national monument, situated in one
of the city's most prominent and beloved locations. The property boasts an impressive
approximately 345 m² of living space, combined with a beautifully landscaped, sunny
city garden offering complete privacy – a rarity in the historic city center.

The location is unsurpassed: directly opposite the National Museum of Antiquities and
just a few steps from the world-famous Hortus Botanicus. All the delights of
Leiden city life are within walking and cycling distance: high-quality shops,
excellent restaurants, theaters, museums, and cultural venues. The immediate surroundings are characterized
by private residences, tranquility, and discretion.

Since purchasing the property in 2010, the current owners have completely renovated and improved the building's sustainability to an exceptionally high
standard, with great respect for its historic
character. For example, a large number of the windows have recently been fitted with the latest
vacuum glazing, making this national monument not only aesthetically impressive but
also meeting the highest modern standards for comfort and
energy efficiency.

The interior exudes history and class, featuring beautiful beamed ceilings, an
elegant array of Delft Blue tiles in the hallway, and an impressive monumental
staircase leading to the upper floors. A special historical detail: this building has had several notable residents throughout the
centuries, including Princesses Beatrix and Margriet during their studies in Leiden.
LAYOUT

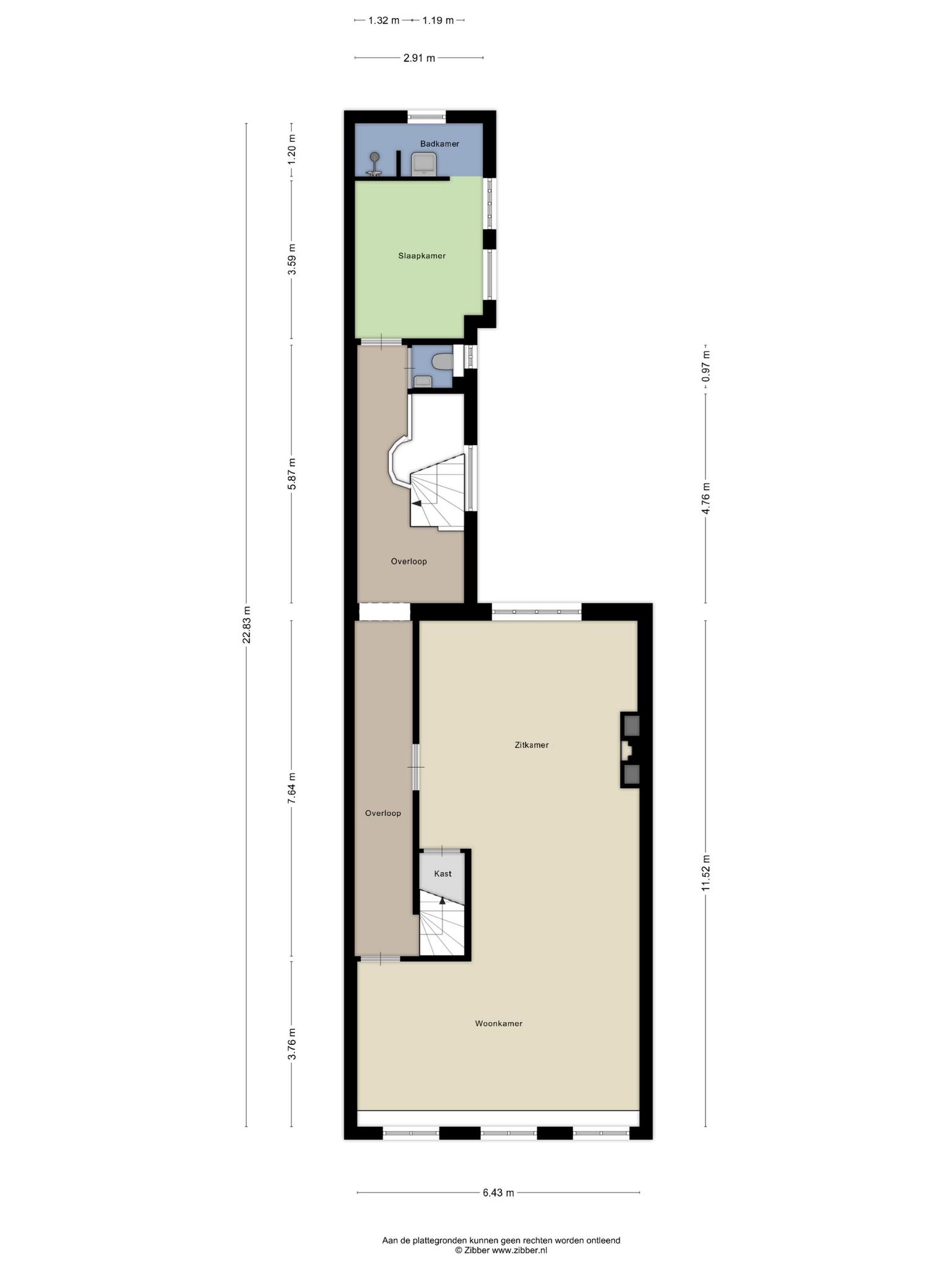
Ground floor
Spacious and bright entrance. From here, access to the kitchen/diner: a beautiful, atmospheric
space with two tall windows facing the canal and French doors leading to the garden. The
luxurious Bulthaup kitchen is naturally equipped with all high-quality
built-in appliances. On the garden side, a wide gas fireplace provides extra warmth and
ambience in the dining and living area.

The long hallway, featuring stucco, including the family crest of
the 18th-century residents, and Delft Blue tiles on both sides,
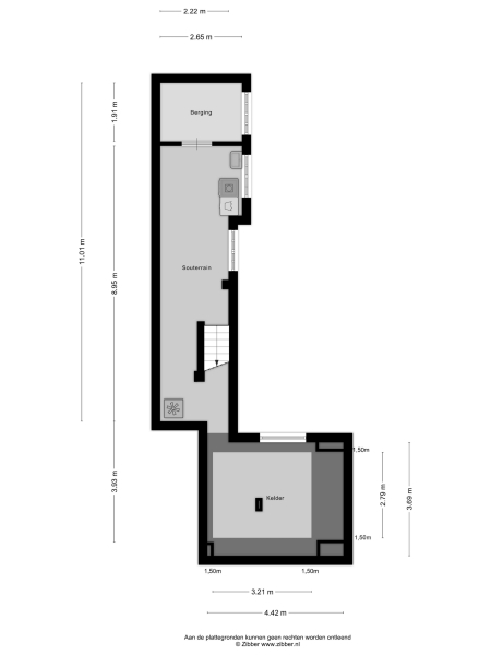
leads to a hall with access to the garden and stairs to the basement. This basement is
currently used as a laundry room. On the street side, there is also a
vaulted cellar, ideal for storage or wine. Furthermore, on the ground floor, you will find a
guest toilet and at the end of the hallway a multifunctional room, suitable as a
study, playroom, or guest room.

First Floor
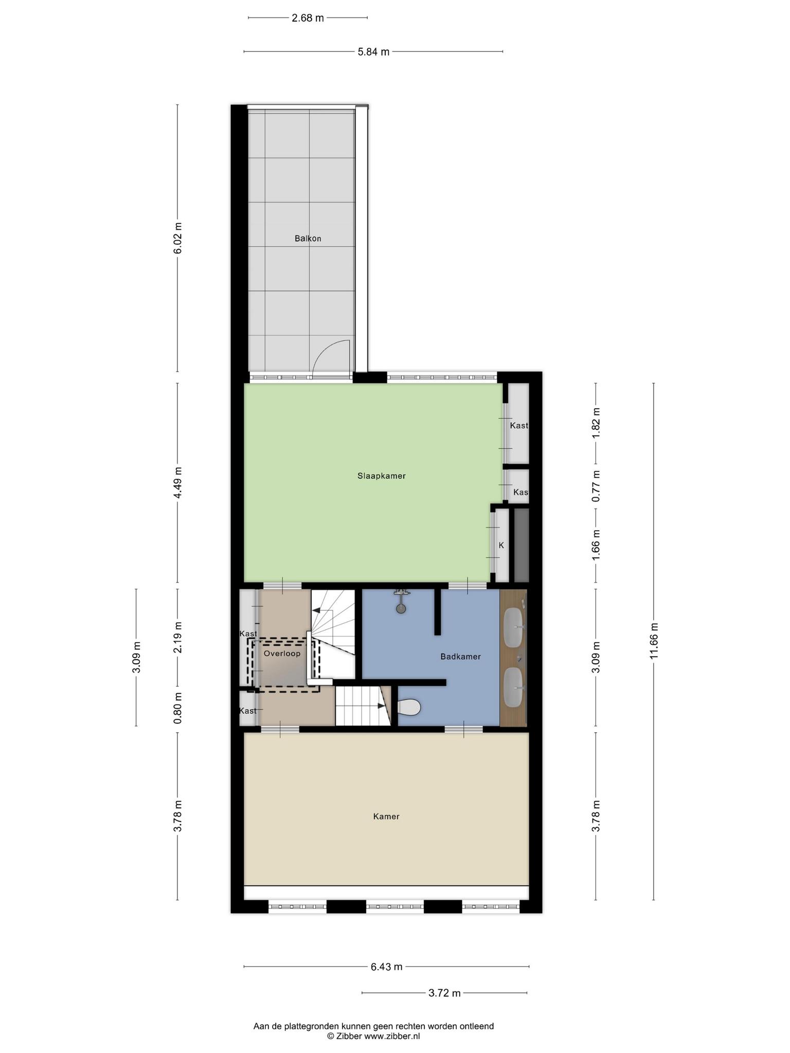
The monumental staircase leads to the first floor. At the rear of the house is
a bedroom with a modern en-suite bathroom, as well as a separate toilet. At the
front of the house is the impressive, very spacious, and bright living room. Facing the garden is an
intimate sitting room surrounding the fireplace; at the front is a spacious living room, three windows wide, with a magnificent view of the canal and the historic cityscape.

Second Floor
Landing with built-in wardrobes. At the rear is the generous
master bedroom with a private roof terrace, extensive wardrobes, and luxurious en-suite bathroom. This bathroom also connects to the spacious room at the front,
currently used as a study, but also perfectly suitable as a full-fledged
bedroom.

Third floor
Landing, bathroom with shower and toilet. At the front is a particularly spacious and attractive bedroom with a dormer window and built-in wardrobe. Here you'll also find the hatch with a loft ladder to the large attic space, where the central heating system is located, among other things. At the rear is another bedroom with a dormer window.

Garden
The beautifully landscaped city garden faces west and offers optimal sun exposure.
Several seating areas have been created for both sun and shade. The absolute tranquility at the rear of the building is striking: an oasis of peace in the heart of the city,
perfect for relaxing moments or long dinners with friends and family.

Parking
You can park on the street with a parking permit. There is a unique opportunity to purchase three parking spaces in the nearby
enclosed parking garage. Price upon request.

Summary
An exceptionally stylish, historic, and comfortable canal house of exceptional
quality, in one of the most beautiful locations in the Netherlands. A rare combination of
history, luxury, privacy, and space.
DETAILS

• Located in an absolute prime location opposite
• Unique and prestigious 17th-century national monument situated on the most beautiful canal in Leiden
• Beautifully landscaped, sunny west-facing city garden with complete privacy and multiple seating areas
• The building has been fully renovated and made sustainable to a very high standard since 2010, while retaining historic details
• A large number of the windows have recently been fitted with high-quality vacuum glazing, exceptional
for a national monument
• High living comfort combined with historical allure
• Extensive presence of original style features, including
- Beamed ceilings
- Monumental staircase
- Delft Blue tiles in the hallway
- Luxurious Bulthaup kitchen/diner with high-quality built-in appliances
- Multiple atmospheric fireplaces
• Very suitable for living and working from home
• Multiple bathrooms and toilets, ideal for a large family or guests
• Roof terrace off the master bedroom
• Quiet location with only private residences on either side
• Historic building with a remarkable residential history, including that of Princesses Beatrix and Margriet during their Leiden residency Study time
• Located within walking and cycling distance of shops, restaurants, museums, theater, and the university
• Excellent accessibility by car and public transport
• An exceptional, rare, and high-quality property in the historic heart of Leiden.

Features

Alarm system
Transfer of ownership
Asking Price
€ 2.750.000
Status
beschikbaar
Acceptance
in overleg
Construction
Kind of house
Grachtenpand
Building type
tussenwoning
Construction period
1660
Energy rating
D
Roof type
samengesteld dak
Bedrooms
6
Bathrooms
3
Surface Areas And Volume
Living Area
345 m2
Other indoor space
28 m2
Exterior space attached to the buildinge
16 m2
Volume in cubic meters
1322 m3
Plot Size
218 m2
Facilities
Mechanische ventilatie
Alarminstallatie
Tv kabel
Rookkanaal
Aan water
Aan rustige weg
In centrum
Vrij uitzicht
Aan vaarwater
Baerz & Co Property Brochure

Brochure

Videos

Floor Plans

Van Baarle Makelaardij

Hoogbraak 1
5111 CS Baarle-Nassau

bie@vanbaarlemakelaardij.com
+31 13 762 0202

www.vanbaarlemakelaardij.com

Information / Viewing request

Bie Kin profile image
Bie Kin
Real Estate Agent

Buying a Luxury Property in Leiden

Leiden offers exceptional heritage, dynamic culture, and curated services, creating an appealing environment for international residents. With refined homes, vibrant academia, and discreet luxury, this canal city delivers a sophisticated lifestyle for a discerning, global community.