Ons kantoor is lid van Baerz & Co Luxury Homes; een internationaal platform dat exclusieve woningmakelaars met elkaar verbindt. Neem contact op met ons secretariaat voor meer informatie over het landelijke aanbod, waarvan u hieronder een selectie kunt bekijken.

LAGE VUURSCHE
Karnemelksweg 2 - 3749 AH
Netherlands

Marquiette Schaap profile image
Marquiette Schaap
Real estate agent
€2,750,000 k.k.
Living Area
350m2
Plot Size
2095m2
Bedrooms
4

Description

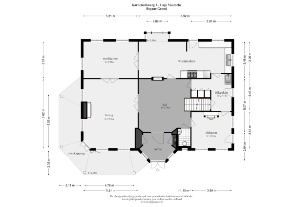
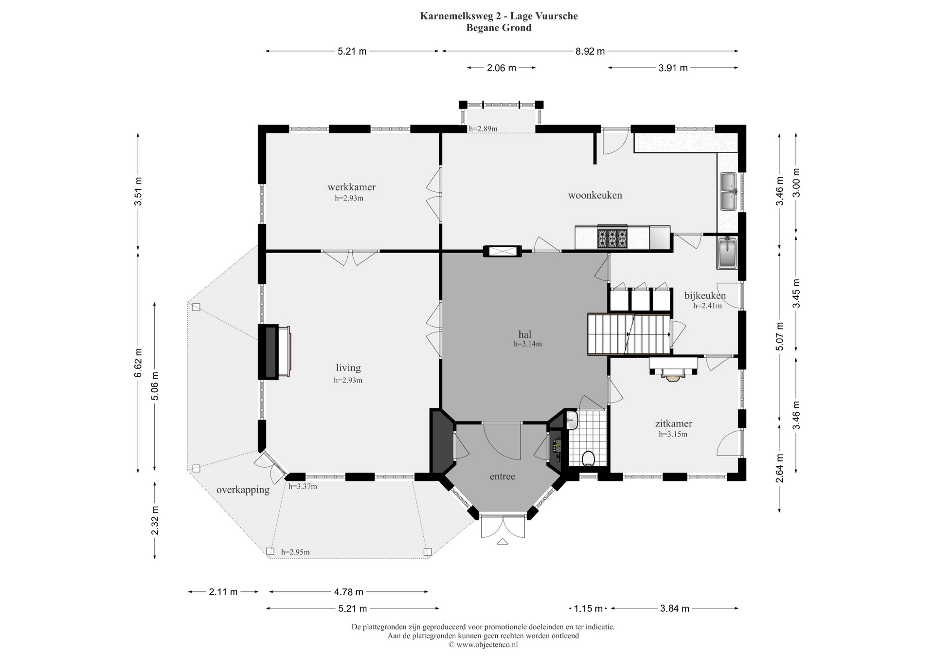
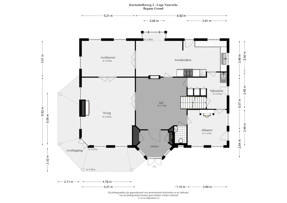
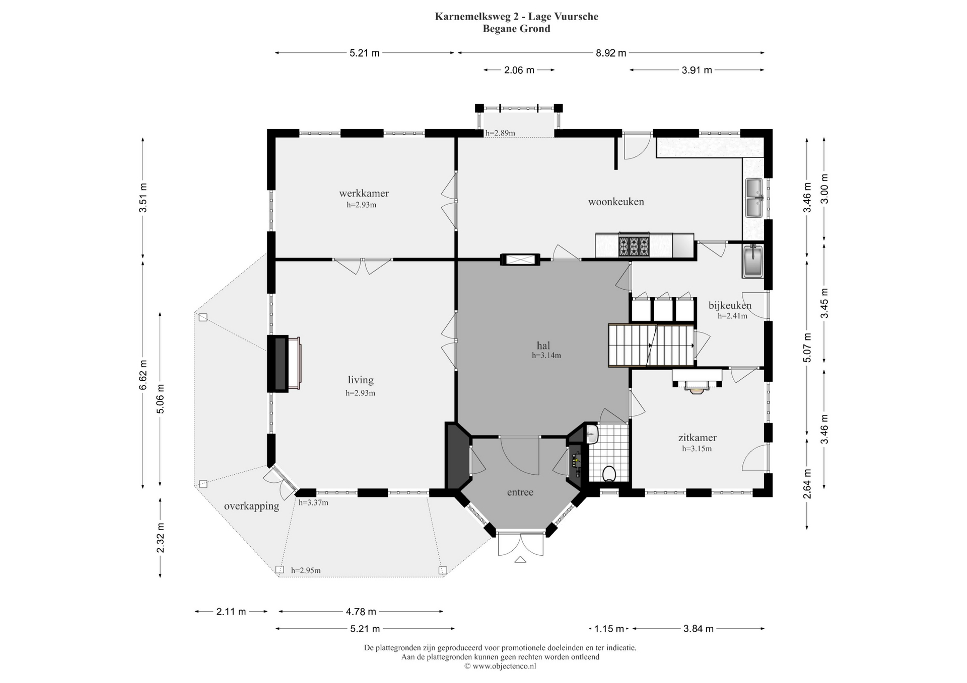
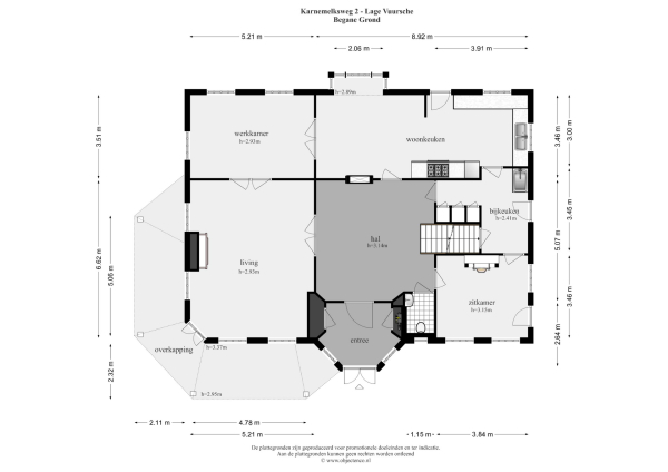
Villa Lage Vuursche is an address that balances history and comfort in a rare and tranquil woodland setting. This villa, set amidst 2,095 m² of private gardens in Lage Vuursche, offers approximately 350 m² of living area and an additional 150 m² basement, creating a sense of spacious calm intrinsic to the property and to this storied hamlet. Enter through a private gate to find fruit trees and a herb garden framing the home, where understated charm is present in every architectural detail.

Designed by architect Van Asbeck in 2012, the villa was conceived with an uncommon attention to heritage. Reclaimed parquet, centuries-old Dutch tiles, storied doors, and roof tiles from a historic Utrecht barracks intermingle with contemporary craftsmanship. An Amsterdam canal house cabinet serves as a centrepiece in the kitchen-diner, lending soul and provenance to the heart of the home. Tall ground-floor ceilings approximate three metres, introducing exceptional light and generosity. The stately entrance reveals a fireplace and intricate staircase, surrounded by living areas including a study, atelier, and fireplace-warmed lounge.

The master suite commands the first floor, accompanied by a dressing area and luxurious bathroom, with two further bedrooms, each with its own bathroom, plus a fourth attic suite above. In the large basement, spaces await for a gym, wine room, or games. Energy class A, partial underfloor heating, mechanical ventilation, alarm, and modern tech secure both comfort and discretion. The garage and automated entrance emphasise privacy, while proximity to Baarn, Hilversum, and major routes ensures strategic access. Villa Lage Vuursche stands as an authentic home of narrative, crafted for those who value material provenance, space, and deep calm.

Special Features

Alarm system

Features

Transfer of ownership
Asking Price
€ 2.750.000 k.k.
Status
beschikbaar
Acceptance
in overleg
Construction
Kind of house
Villa
Building type
vrijstaande woning
Construction period
2012
Energy rating
A++
Roof type
samengesteld dak
Bedrooms
4
Bathrooms
3
Surface Areas And Volume
Living Area
350 m2
Other indoor space
150 m2
Exterior space attached to the buildinge
29 m2
Volume in cubic meters
1740 m3
Plot Size
2095 m2
Facilities
Mechanische ventilatie
Alarminstallatie
Tv kabel
Rookkanaal
Aan rustige weg
Vrij uitzicht
Beschutte ligging
In bosrijke omgeving
Baerz & Co Property Brochure

Brochure

Videos

Floor Plans

Art of Living by Marquiette & Partners

Meentweg 4
1261 XT Blaricum

hello@artoflivingbymar.com
+31 35 763 54 24

www.artoflivingbymarquiette.com

Information / Viewing request

Marquiette Schaap profile image
Marquiette Schaap
Real estate agent