Baerz & Co is een landelijk samenwerkingsverband van zorgvuldig geselecteerde boutique luxury makelaars. Samen vormen wij één netwerk, met één gedeeld aanbod. De woningen die u op onze website ziet, zijn afkomstig van alle aangesloten kantoren binnen Baerz & Co. Daardoor is niet ieder object rechtstreeks door ons kantoor in verkoop, maar door een gespecialiseerde collega binnen ons netwerk. Heeft u een woning gevonden die u aanspreekt en wilt u meer informatie? Dan brengen wij u graag persoonlijk in contact met de betreffende verkoopmakelaar, zodat u direct en zorgvuldig wordt begeleid.

AMSTERDAM
Prinsengracht 845 - 1017 KB
Netherlands

Bie Kin profile image
Bie Kin
Real Estate Agent
€3,950,000 k.k.
Living Area
287m2
Plot Size
156m2
Bedrooms
4

Description

Prinsengracht 845, 1017 KB Amsterdam

This fully-renovated canal house (of almost 300 m2) is located on the beautiful Prinsengracht! Spread over five floors, the property has four bedrooms, three bathrooms, a large, attractive living room, luxury open-plan kitchen and two patios. Everything has been finished to an exceptionally high standard and no expense has been spared!

Accessibility

The property is located centrally, in the heart of Amsterdam, between the Nieuwe Spiegelstraat and the Vijzelstraat. The P.C. Hooftstraat, Rijksmuseum, famous Negen Straatjes (the nine streets) and the Leidseplein, Rembrandtplein and Kalverstraat are all within walking distance. The property is very conveniently located for a wide range of cultural amenities, including cinemas, Royal Theatre Carré, bars, restaurants, cafés, gyms and yoga studios. The pleasant Amstelveld square is just a few minutes' walk away, the Utrechtsestraat boasts an extensive number of high-end shops and the Amstel and the ‘Stopera’ (Dutch National Opera and Ballet) are both within walking distance as well.
The property benefits from excellent accessibility by public transport via tram line 24 on the Vijzelstraat and tram line 4 on the Utrechtsestraat. A metro stop for the Noord-Zuidlijn is a very short walk away as well and transports you to Amsterdam Centraal in just four minutes, the Zuidas business district in six minutes and Amsterdam Airport Schiphol in about 20 minutes. The A10 and A2 arterial roads are easily accessible from this part of Amsterdam too.

Layout

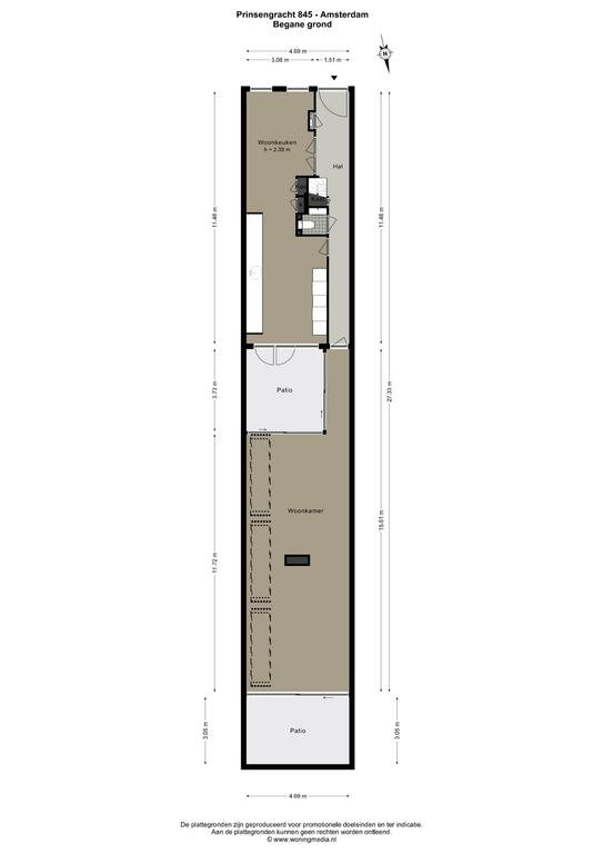
Ground floor
The property is entered via a beautiful canalside entrance. The hallway has a marble floor and panelled walls and give access to all rooms on this floor. Superb wall lighting and wall decoration add to the entrance’s very special ambiance.
Stunning glazed steel doors lead into the property’s living kitchen. At the front of this floor, there is a dining room with a view of the canal through big windows. The luxury kitchen is equipped with a number of Gaggenau built-in appliances, including a double fridge and freezer, dishwasher, wine climate cabinet, (steam) oven, warming drawer, a sink with a Quooker tap and an induction hob with a built-in extraction system. A spacious patio floods the kitchen with light and can be accessed from both the kitchen and the living room.
The living room is accessed via a passageway in which antique white tiles have been carefully preserved. The living room has a microcement floor and fireplace and a big tunnel gas fire. A wonderful sliding door gives access to a second patio with original tiling. Both the patios and skylights flood the living room with light. The ground floor is more than 30 metres long in total, which is unique for a canal property in Amsterdam.

First floor
Stairs in the hall lead to the first floor, which is used as an extension of the living space on the ground floor. The landing gives access to a separate toilet room, which has been beautifully finished with attractive tiling. At the back of this floor, everything is in place to create a lounge-TV room (for example). The space at the front of this floor has a beautiful view of the canal and would work well as a study. At the back, there is a view of the extension’s green sedum roof.
The first and second floors have both been laid with a beautiful French oak floor with different plank widths.

Second floor
A master bedroom occupies the entire second floor and is accessed via the landing on this floor. Big windows at the front frame a beautiful view of the canal and also flood the room with light. The original ceiling beams and gas fire give this room a luxury feel. At the back of this floor, there is a luxury bathroom with a free-standing bath, double sink unit, toilet and walk-in shower.

Third floor
The third-floor landing has stairs that lead to the fourth floor and also gives access to a room with all the connections necessary for a washing machine and tumble dryer. There is a good-sized bedroom at the front of this floor and a second large bedroom at the back. The luxury microcement bathroom on this floor is centrally located and has a bath, sink unit and walk-in shower. There is also a separate toilet room on this floor. The bathroom can be accessed from the bedrooms at the front and back of this floor. A block-patterned French oak floor has been laid on both the third and fourth floors.

Fourth floor
Stairs on the fourth-floor landing lead to the property's attic, where you will find a good-sized bedroom, plenty of storage space and a bathroom with a sink unit, toilet and shower.
To summarise: this beautiful family home has been finished to a high standard and is located in the centre of Amsterdam!

Details
- Usable living space approx. 287 m² (NEN-2580 report available)
- Fully renovated to a very high standard
- New foundations
- Original features
- Very extensive Domotica home automation system
- Four bedrooms
- Three bathrooms
- Two patios
- Gaggenau kitchen appliances
- High-end bathrooms with original tiling, microcement and Dornbracht taps
- High-end lighting (Flos, Modular, Wevre Ducre, Astro and Casa Gitane, etc.)
- A number of storage spaces
- All the property's bedrooms are air-conditioned
- Freehold property, so there is no ground rent to pay
- Transfer date in consultation

We have gathered this information with the greatest of possible care. However, we will not accept any liability for any incompleteness, inaccuracy or any other matter nor for the consequences of such. All measurements and surfaces stated are indicative. The purchaser has a duty to investigate any matter that may be of importance to him or her. The estate agent is the adviser to the seller with regard to this residence. We advise you to engage an expert (NVM registered) estate agent who will guide you through the purchasing process. Should you have any specific desires with regard to the residence, we advise you to make these known as soon as possible to your purchasing estate agent and have an independent investigation carried out into such matters. If you do not engage an expert, you will be deemed as considering yourself to be sufficiently expert to be able to oversee all matters that could be important. The NVM conditions apply.

Features

Air conditioning
Transfer of ownership
Asking Price
€ 3.950.000 k.k.
Status
verkocht onder voorbehoud
Acceptance
in overleg
Construction
Kind of house
Grachtenpand
Building type
tussenwoning
Construction period
1710
Bedrooms
4
Bathrooms
3
Surface Areas And Volume
Living Area
287 m2
Other indoor space
0 m2
Exterior space attached to the buildinge
27 m2
Volume in cubic meters
992 m3
Plot Size
156 m2
Facilities
Mechanische ventilatie
Tv kabel
Airconditioning
Domotica
Aan water
In centrum
Baerz & Co Property Brochure

Brochure

Videos

Video Prinsengracht 845

Van Baarle Makelaardij

Hoogbraak 1
5111 CS Baarle-Nassau

bie@vanbaarlemakelaardij.com
+31 013762 02 02

www.vanbaarlemakelaardij.com

Information / Viewing request

Bie Kin profile image
Bie Kin
Real Estate Agent

Buying a Luxury Property in Amsterdam

Amsterdam offers a cosmopolitan lifestyle defined by heritage, connectivity, and discreet luxury. Residents benefit from a robust international community, curated services, and vibrant culture. The city’s enduring appeal lies in its blend of history, sophistication, and progressive spirit.