Ons kantoor is lid van Baerz & Co Luxury Homes; een internationaal platform dat exclusieve woningmakelaars met elkaar verbindt. Neem contact op met ons secretariaat voor meer informatie over het landelijke aanbod, waarvan u hieronder een selectie kunt bekijken.

Bovenwoning for sale in AMSTERDAM

AMSTERDAM Minervalaan 76 3 - 1077 PH The Netherlands


Michiel Floberg profile image
Michiel Floberg
Real Estate Agent
+31 (0)6 20 16 47 40
info@heerenmakelaars.nl

Heeren Makelaars
Stadionweg 75
1077 SE Amsterdam
NETHERLANDS
+31 0204702255
www.heerenmakelaars.nl
info@heerenmakelaars.nl

Living area
132m2
Plot size
N/A
Bedrooms
2

Description

Minervalaan 76-3, 1077 PH Amsterdam

Exceptionally well-laid-out apartment (approx. 132m²) with two spacious bedrooms and a lovely balcony.
This stately and bright apartment is located on one of the most beautiful and green avenues in Amsterdam South. The property is in excellent condition. A charming attic room with a roof terrace, a spacious attic storage area, and an elevator are just a few of the many highlights of this apartment.

Location / Accessibility

Minervalaan is known as a distinguished street with many Berlage architectural details in Amsterdam South. The apartment is located on the most beautiful stretch of Minervalaan, between Stadionweg and the pedestrian bridge near Zuid/WTC station. Living here means enjoying peace and greenery while being just a short walk away from all the vibrancy Amsterdam South has to offer. Beethovenstraat, Stadionweg, and Cornelis Schuytstraat—with their wide range of supermarkets, specialty shops, and other stores—are all close by. There is also no shortage of cafés and restaurants in this area: countless inviting terraces, cafés, lunch spots, and restaurants make the neighborhood lively and welcoming. The apartment is surrounded by excellent (inter)national primary and secondary schools. Vondelpark, Beatrixpark, and Amstelpark are all nearby, perfect for sports and recreation. Accessibility is outstanding: within a few minutes’ walk, you reach Zuid/WTC station, with metro, train, and bus connections in all directions—including a direct link to Schiphol Airport. From Zuid Station, you can reach Amsterdam Central Station in under 10 minutes, where trams, trains, buses, metro lines, and ferries provide seamless citywide access. Parking on Minervalaan is easy, with two parking permits currently available without a waiting list.

Layout

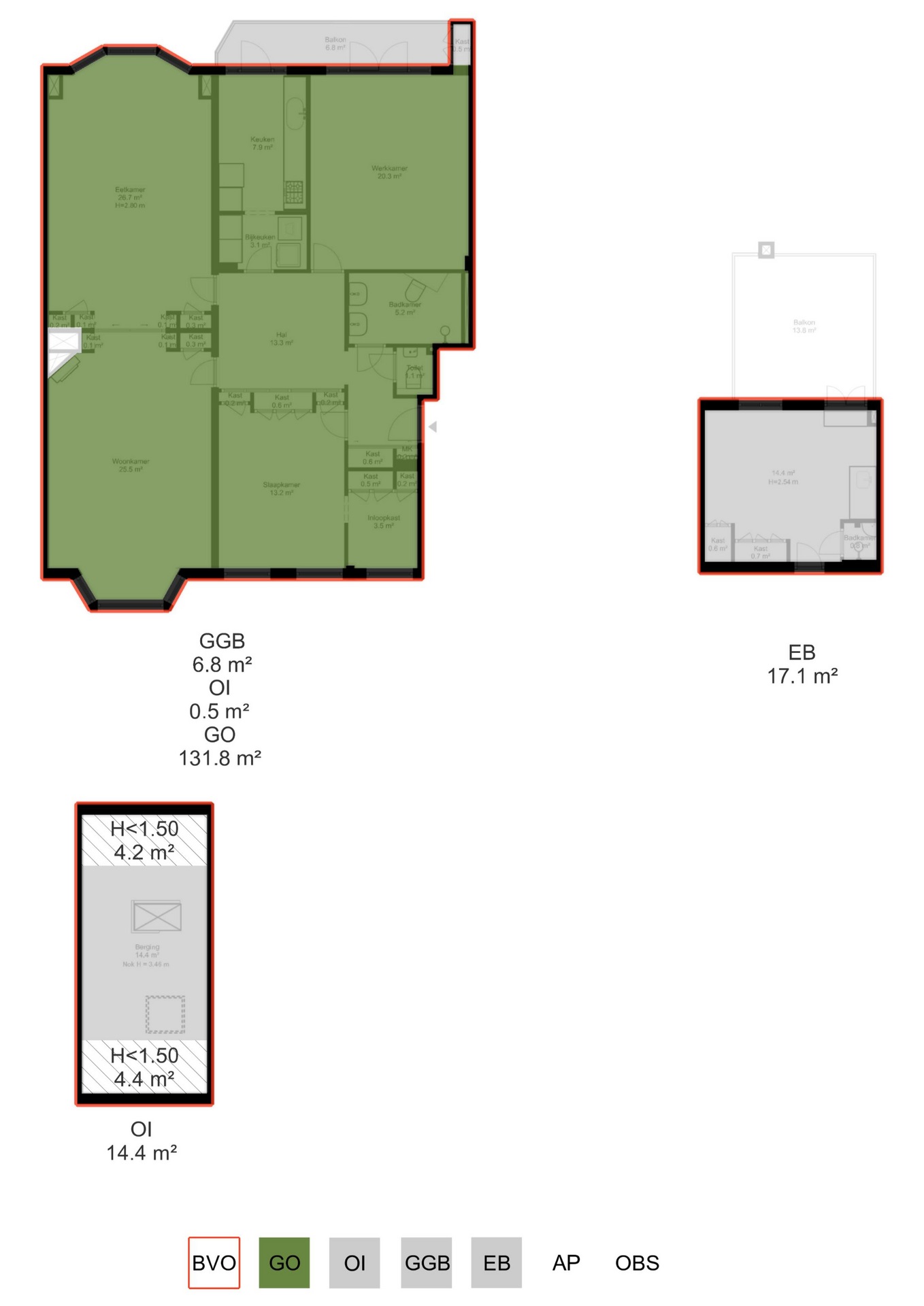
Neat communal entrance with elevator and staircase.

Third Floor:

Spacious entrance hall providing access to all rooms. There is a coat closet in the hall, along with the meter cupboard and a separate toilet with a small sink. At the front, a generously sized bedroom features a walk-in closet and several built-in wardrobes. At the rear, the large main bedroom opens through French doors onto the west-facing balcony, offering views of the beautifully landscaped and well-maintained inner gardens of Minervalaan and Michelangelostraat.

The centrally located bathroom includes double sinks, a toilet, and a walk-in shower. The kitchen, also at the rear, is equipped with a sink, induction cooktop, dishwasher, fridge-freezer combo, oven, and microwave. From the kitchen, you also have access to the balcony. Ample storage is available in the kitchen. The utility room is fitted with connections for a washing machine and dryer.

The living and dining areas, connected by original en-suite doors, along with the hallway, retain beautiful authentic details. The spacious living room is at the front of the apartment, with the dining room at the rear. Both feature charming bay windows that allow in plenty of natural light. Original en-suite doors with built-in cabinets on either side provide the option to separate the spaces. The dining room is fitted with air conditioning.

In short: a beautifully laid-out apartment in a prime location!

Attic Floor:
Attic room with sink, shower, and built-in wardrobes. Access to your private roof terrace through a door.

Attic Storage:
From the communal landing, you reach the attic level. A retractable ladder leads to a spacious attic storage area (approx. 33m²).

Minervalaan:
In Roman mythology, Minerva is the goddess of wisdom. (Source: Stadsatlas Amsterdam)

Details:
- Apartment rights: 132m² (measured according to NEN2580 measurement standard)
- Spacious, light-filled apartment
- Ground lease paid off until June 30, 2055
- Municipal monument
- Active and professionally managed homeowners’ association (VvE)
- Monthly service costs: €350
- Private central heating system
- Attic room (approx. 17m²) with roof terrace
- Attic storage (14m²), accessible from the attic level
- In 2023, the third-floor apartment was fitted with Bengglas (high-performance insulation glass), in accordance with monument regulations and approval from the Monuments Office
- All floors in the apartment are insulated with Fermacell
- Elevator
- Parking by permit system; two permits currently available without waiting time
- Delivery in consultation

This information has been compiled by us with due care. However, no liability is accepted for any incompleteness, inaccuracy, or otherwise, nor for the consequences thereof. All specified sizes and surfaces are indicative. The buyer has his own duty to investigate all matters that are important to him or her. With regard to this property, the broker is the advisor to the seller. We advise you to hire an expert (NVM) broker to guide you through the purchase process. If you have specific wishes regarding the property, we advise you to make them known to your purchasing broker in a timely manner and to conduct (or have conducted) independent research into these matters. If you do not engage an expert representative, you are deemed by law to be sufficiently expert to be able to oversee all matters of importance.

Features

Transfer of ownership
price
€ 1.385.000 k.k.
Status
verkocht onder voorbehoud
Acceptance
in overleg
Construction
Kind of house
Bovenwoning
Building type
appartement
Construction period
1931
Roof type
zadeldak
Bedrooms
2
Bathrooms
2
Surface Areas And Volume
Living area
132 m2
Other indoor space
15 m2
Exterior space attached to the building
7 m2
External storage space
17 m2
Volume in cubic meters
556 m3
facilities
Tv kabel
Lift
Airconditioning
Aan rustige weg
In woonwijk
Vrij uitzicht
Baerz & Co Property Brochure

Brochure

Information / Viewing request

Videos

Photos

Floor Plans