Ons kantoor is lid van Baerz & Co Luxury Homes; een internationaal platform dat exclusieve woningmakelaars met elkaar verbindt. Neem contact op met ons secretariaat voor meer informatie over het landelijke aanbod, waarvan u hieronder een selectie kunt bekijken.

AMSTERDAM
Govert Flinckstraat 264 H - 1073 CE
Netherlands

Eran Hausel profile image
Eran Hausel
Real estate agent
€1,100,000 k.k.
Living Area
175m2
Plot Size
108m2
Bedrooms
5

Description

Apartment Amsterdam anchors itself on Govert Flinckstraat, within the vibrant De Pijp district, offering a rare composition of two self-contained residences, each with private entrance and house number. This versatile property, spanning 175 m² across four floors, presents significant potential for both families and investors seeking central Amsterdam with authentic character. Its undivided status and freehold land offer flexibility for adaptation—create a generous family home or reimagine as two apartments, subject to relevant permits.

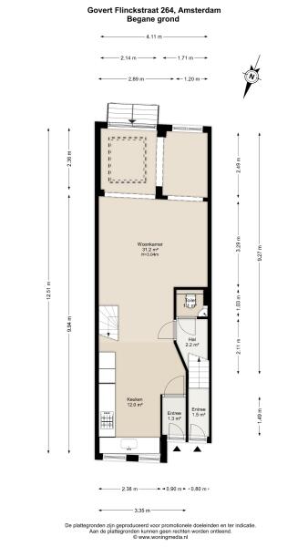
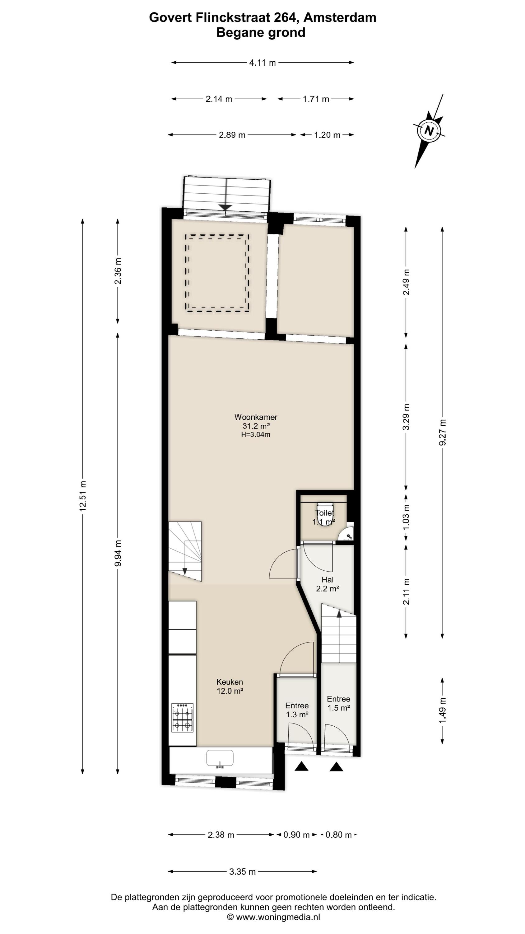
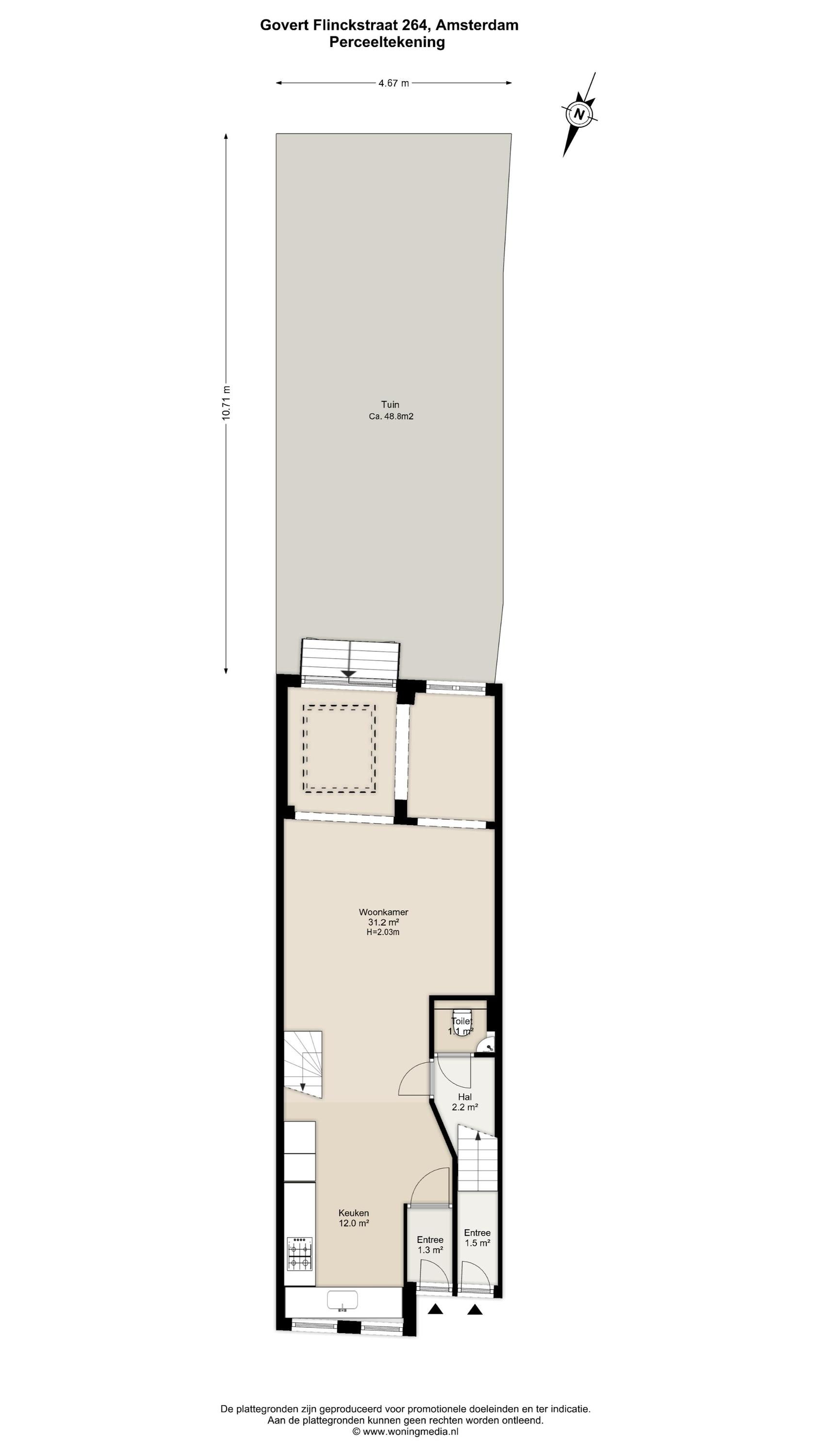
On the ground floor, expansive living space is introduced by over three metres of ceiling height, a skylight, and French doors leading to a south-facing garden of approximately 49 m². The open kitchen at the front frames street views, with appliances including a Howat 3-in-1 boiling water tap, five-burner stove, and generous storage solutions. The first floor brings three bedrooms, a full bathroom with both bath and walk-in shower, and a separate laundry area.

The second floor stands autonomous, accessed by a private entrance, with living and dining spaces arranged to maximise light. A separate kitchen and dedicated study or home office complete the level. The third floor, marked by its distinctive roof structure, dormer windows, and skylights, accommodates two sizable bedrooms and a bathroom, with the principal bedroom granting access to a south-facing balcony of approximately 5 m².

Positioned moments from the Albert Cuyp Market and Sarphatipark, surrounded by an array of cafés, boutiques, and daily amenities, the apartment offers immediate access to the cultural and culinary rhythm of Amsterdam. Major transport links, from the Noord/Zuid metro to citywide tram and bus routes, are within reach, with Schiphol Airport attainable in 15 minutes by car. Energy class D, central heating, and the option for two parking permits further support contemporary living. The apartment promises a discreet base in a dynamic city setting.

Explore Amsterdam with Baerz, Your Trusted Personal Property Finder & Advisor

Navigating Amsterdam’s luxury market calls for deep local intelligence, discretion, and negotiation expertise. Top advisors provide access to private listings, clarify nuanced ownership rules, and pinpoint value in a market where opportunities seldom reach public view. Advisory teams offer rigorous asset vetting and representation, strengthening your position during negotiations, ensuring seamless transactions, and protecting your privacy throughout the process.

Features

Transfer of ownership
Asking Price
€ 1.100.000 k.k.
Status
verkocht onder voorbehoud
Acceptance
in overleg
Construction
Kind of house
Eengezinswoning
Building type
tussenwoning
Construction period
1885
Energy rating
D
Roof type
mansarde dak
Bedrooms
5
Bathrooms
2
Surface Areas And Volume
Living Area
175 m2
Other indoor space
0 m2
Exterior space attached to the buildinge
5 m2
Volume in cubic meters
611 m3
Plot Size
108 m2
Facilities
Tv kabel
Natuurlijke ventilatie
In centrum
In woonwijk
Baerz & Co Property Brochure

Brochure

Videos

Heeren Makelaars

Stadionweg 75
1077 SE Amsterdam

info@heerenmakelaars.nl
+31 204702255

www.heerenmakelaars.nl

Information / Viewing request

Eran Hausel profile image
Eran Hausel
Real estate agent