Ons kantoor is lid van Baerz & Co Luxury Homes; een internationaal platform dat exclusieve woningmakelaars met elkaar verbindt. Neem contact op met ons secretariaat voor meer informatie over het landelijke aanbod, waarvan u hieronder een selectie kunt bekijken.

AMSTERDAM
Cannenburg 3 - 1081 GT
Netherlands

Igor Veendrick profile image
Igor Veendrick
Real estate agent
€1,600,000 k.k.
Living Area
159m2
Plot Size
392m2
Bedrooms
3

Description

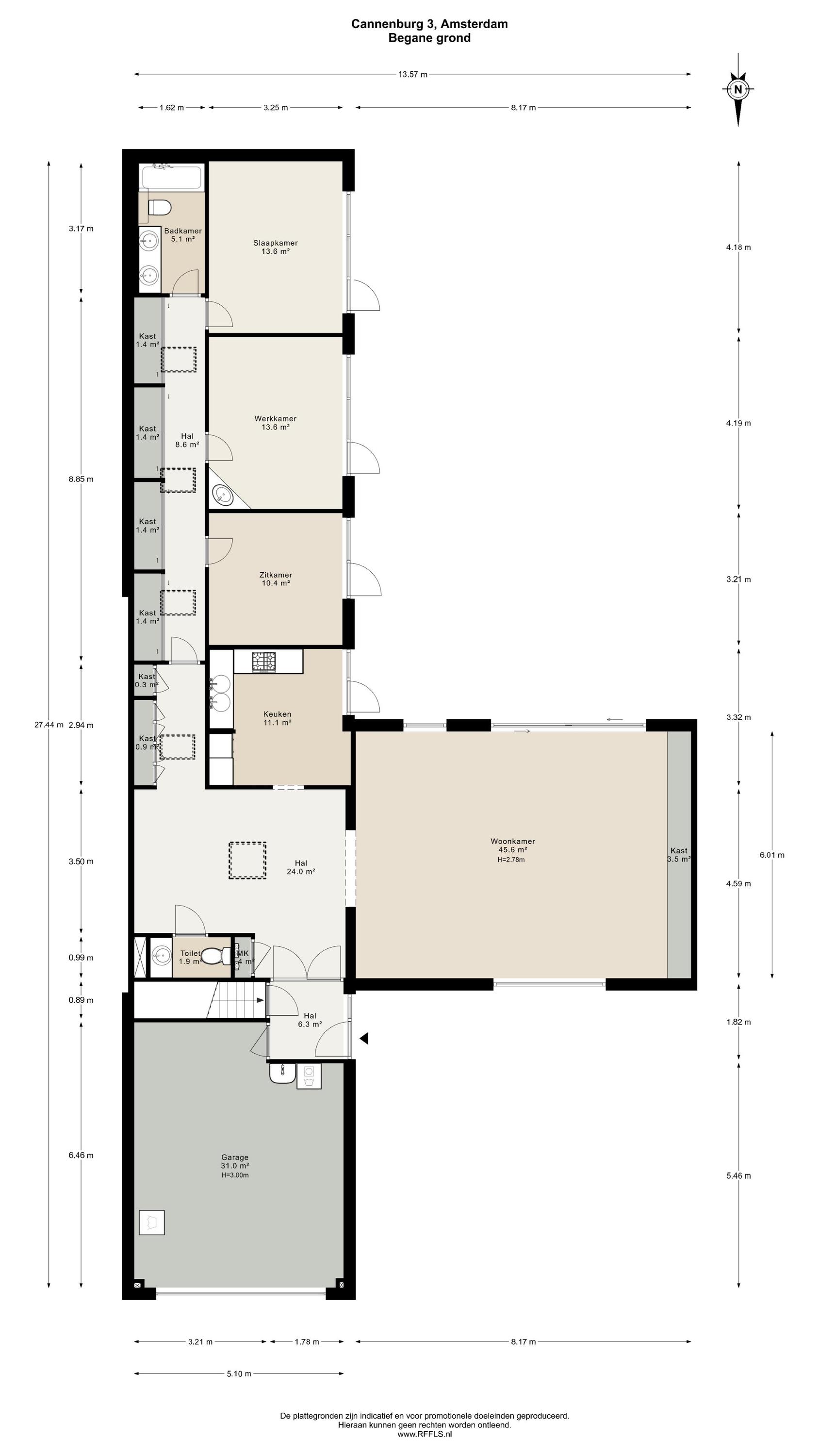
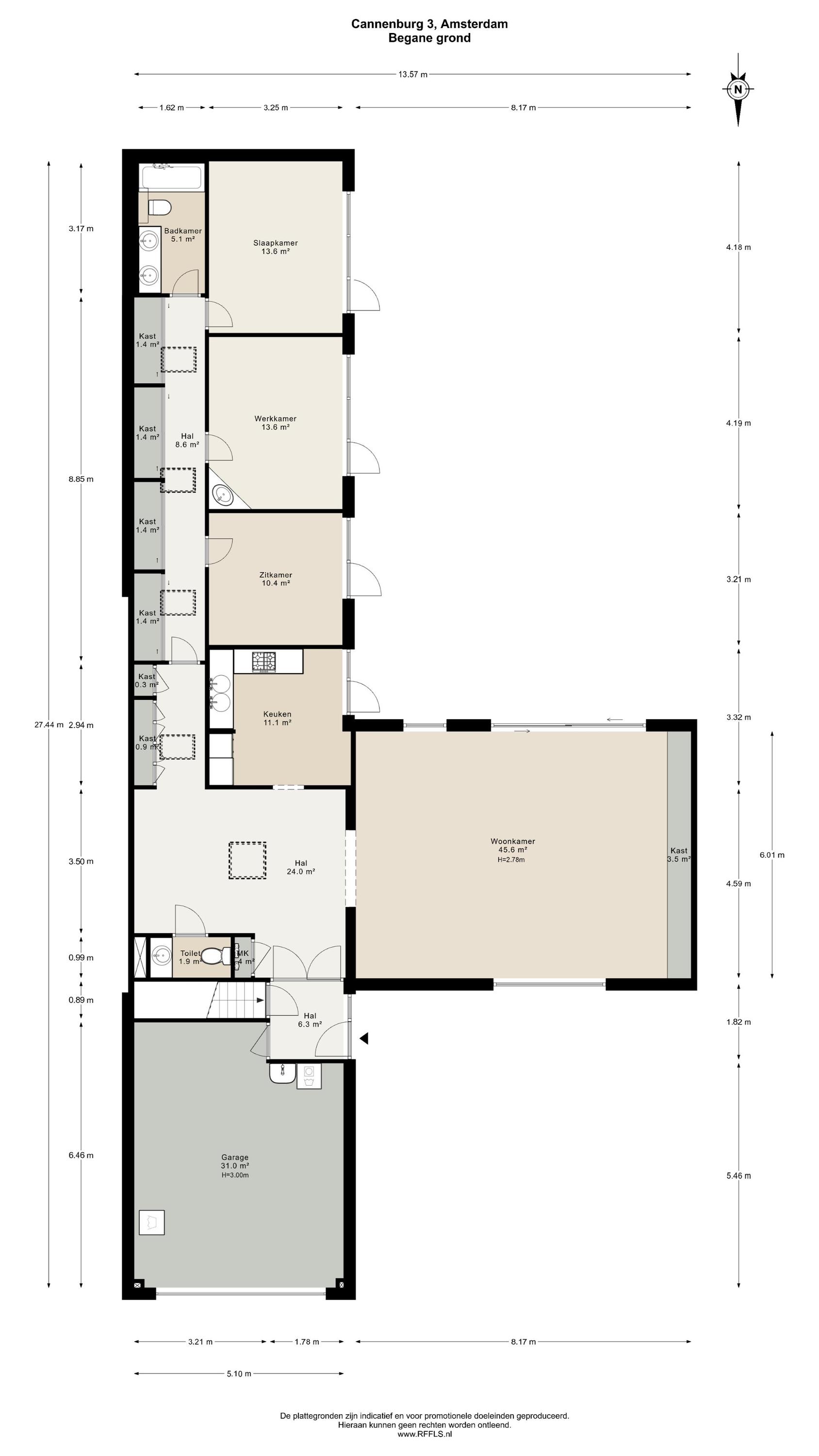
This family home Amsterdam Buitenveldert offers a harmonious balance of volume, privacy, and light across approximately 159 m² of living space. The house is set within a tranquil residential pocket, surrounded by greenery, and features both a generous front and south-facing rear garden totalling approximately 179 m². The wide layout includes a luminous living room, three comfortable bedrooms, and a bathroom with bathtub. Air conditioning enhances the atmosphere in both the living room and master bedroom. A flexible 37 m² basement, currently arranged as a second living area with a bar, introduces further options for relaxation or work.

The home’s thoughtful plan includes a fully equipped kitchen with high-end appliances, built-in closets along the hall for storage, and direct garden access from each bedroom. The private garage, with electric door and capacity for two cars, adds a layer of practical ease to daily living. Double glazing and mechanical ventilation elevate comfort throughout the year.

Situated in the sought-after Buitenveldert neighbourhood, this property places you steps from Gelderlandplein’s boutiques and restaurants, the International School just 100 metres away, and the rhythm of city living via Station Zuid and the A10. With access to Amstelpark and Amsterdamse Bos within minutes, it offers immediate proximity to both city and green respite. Families, professionals, and international buyers will appreciate the connection to the Zuidas business district and smooth links to Schiphol and beyond. This luxury family home for sale in Amsterdam Buitenveldert brings together space, serenity, and the pulse of the city.

Explore Amsterdam with Baerz, Your Trusted Personal Property Finder & Advisor

Navigating Amsterdam’s luxury market calls for deep local intelligence, discretion, and negotiation expertise. Top advisors provide access to private listings, clarify nuanced ownership rules, and pinpoint value in a market where opportunities seldom reach public view. Advisory teams offer rigorous asset vetting and representation, strengthening your position during negotiations, ensuring seamless transactions, and protecting your privacy throughout the process.

Special Features

Air conditioning

Features

Transfer of ownership
Asking Price
€ 1.600.000 k.k.
Status
verkocht onder voorbehoud
Acceptance
in overleg
Construction
Kind of house
Villa
Building type
vrijstaande woning
Construction period
1965
Bedrooms
3
Bathrooms
1
Surface Areas And Volume
Living Area
159 m2
Other indoor space
75 m2
Volume in cubic meters
888 m3
Plot Size
392 m2
Facilities
Mechanische ventilatie
Airconditioning
Dakraam
Aan park
Aan rustige weg
In woonwijk
Baerz & Co Property Brochure

Brochure

Videos

Floor Plans

Heeren Makelaars

Stadionweg 75
1077 SE Amsterdam

info@heerenmakelaars.nl
+31 204702255

www.heerenmakelaars.nl

Information / Viewing request

Igor Veendrick profile image
Igor Veendrick
Real estate agent